Elected Officials
Courts
Departments
Initiatives
Open Government
About
Login / Register
Home
/
Property & Tax Records
/
Property Records
/
Property & Tax Search
/
Parcel Profile
/
Print View
Search for Another Parcel
Parcel Profile
Historical Card
Sketches
Photos
Tax Map
Taxes
Print View
Print This Page
Address: 11820 PENNSIDE RD
Parcel: 04027067000500
Parcel Profile
Address
11820 | PENNSIDE | RD
Street Status
PAVED
School District
NORTHWESTERN SCHOOL
Acreage
6.7500
Classification
R
Land Use Code
MULTIPLE DWELLINGS
Legal Description
11820 PENNSIDE RD 6.751 AC
Square Feet
1156
Topo
ABOVE STREET | ROLLING
Utility
WELL | SEPTIC
Zoning
Please contact your municipal zoning officer
Deed Book
0332
Deed Page
1571
2026 Tax Values
Land Value / Taxable
34,700 / 34,700.00
Building Value / Taxable
62,900 / 62,900.00
Total Value / Taxable
97,600 / 97,600.00
Clean & Green
Inactive
Homestead Status
Inactive
Farmstead Status
Inactive
Lerta Amount
0
Lerta Expiration Year
0
Residential Data
Card 1
Style
BUNGALOW
Basement
PART
Year Built
1900
Exterior Wall
ALUMINUM/VINYL
Total Living Area
1156
Full Baths
1
Half Baths
0
Fuel Type
GAS
Heating
CENTRAL
Heating System
FORCED AIR
Stories
1.0
Total Bedrooms
2
Total Family Rooms
0
Total Rooms
4
Fireplaces
0
Other Buildings & Yards
Description
Built
Width
Length
Area
FLAT BARN
1920
14
48
672
FRAME OR CB DETACHED GARAGE
1957
24
40
960
METAL SHED
1960
12
56
672
SINGLE WIDE MOBILE HOME
1971
12
55
660
SKIRTING
1971
0
0
134
WOOD DECK
1980
0
0
336
Sales History
Sale Date
Type
Price
Book / Page
Other Info
5/4/1994
0
0332 / 1571
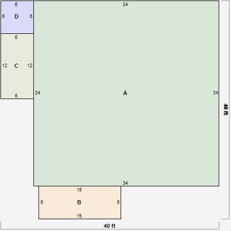
Parcel Sketches
Residential Card 1
A
MAIN
1156 square feet
B
OFP OPEN FRAME PORCH
90 square feet
C
EFP ENCL FRAME PORCH
72 square feet
D
WDDCK WOOD DECKS
36 square feet
Parcel Images
Please note:
this tab is for informational purposes only and may not show all delinquencies, see the Taxes tab for more accurate delinquent taxes due.