Elected Officials
Courts
Departments
Initiatives
Open Government
About
Login / Register
Home
/
Property & Tax Records
/
Property Records
/
Property & Tax Search
/
Parcel Profile
/
Print View
Search for Another Parcel
Parcel Profile
Historical Card
Sketches
Photos
Tax Map
Taxes
Print View
Print This Page
Address: 11423 CROUCH RD
Parcel: 04028063000300
Parcel Profile
Address
11423 | CROUCH | RD
Street Status
UNPAVED
School District
NORTHWESTERN SCHOOL
Acreage
41.0000
Classification
F
Land Use Code
20 - 79.99 ACRES
Legal Description
11423 CROUCH RD 41 AC
Square Feet
1552
Topo
ROLLING
Utility
WELL | SEPTIC
Zoning
Please contact your municipal zoning officer
Deed Book
2025
Deed Page
003296
2026 Tax Values
Land Value / Taxable
38,800 / 38,800.00
Building Value / Taxable
66,900 / 66,900.00
Total Value / Taxable
105,700 / 105,700.00
Clean & Green
Inactive
Homestead Status
Inactive
Farmstead Status
Inactive
Lerta Amount
0
Lerta Expiration Year
0
Residential Data
Card 1
Style
OLD STYLE
Basement
FULL
Year Built
1900
Exterior Wall
COMPOSITION
Total Living Area
1552
Full Baths
1
Half Baths
1
Fuel Type
GAS
Heating
CENTRAL
Heating System
FORCED AIR
Stories
2.0
Total Bedrooms
3
Total Family Rooms
0
Total Rooms
7
Fireplaces
0
Other Buildings & Yards
Description
Built
Width
Length
Area
FRAME UTILITY SHED
1900
14
24
336
FLAT BARN
1935
44
32
1408
FRAME UTILITY SHED
1900
11
19
209
FRAME UTILITY SHED
1880
12
18
216
FRAME OR CB DETACHED GARAGE
1940
20
22
440
Sales History
Sale Date
Type
Price
Book / Page
Other Info
3/4/2025
LAND & BUILDING
0
2025 / 003296
QUIT CLAIM DEED
8/20/2021
LAND & BUILDING
130000
2021 / 022381
DEED
7/2/1990
0
0128 / 0961
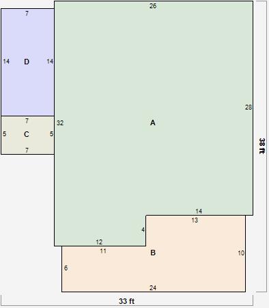
Parcel Sketches
Residential Card 1
A
MAIN
776 square feet
B
OFP OPEN FRAME PORCH
196 square feet
C
WDDCK WOOD DECKS
35 square feet
D
OFP OPEN FRAME PORCH
98 square feet
Parcel Images
Please note:
this tab is for informational purposes only and may not show all delinquencies, see the Taxes tab for more accurate delinquent taxes due.