Elected Officials
Courts
Departments
Initiatives
Open Government
About
Login / Register
Home
/
Property & Tax Records
/
Property Records
/
Property & Tax Search
/
Parcel Profile
/
Print View
Search for Another Parcel
Parcel Profile
Historical Card
Sketches
Photos
Tax Map
Taxes
Print View
Print This Page
Address: 10611 WHITTAKER RD
Parcel: 04029060000300
Parcel Profile
Address
10611 | WHITTAKER | RD
Street Status
UNPAVED
School District
NORTHWESTERN SCHOOL
Acreage
25.0000
Classification
F
Land Use Code
20 - 79.99 ACRES
Legal Description
10611 WHITTAKER RD 25 AC
Square Feet
1149
Topo
ABOVE STREET | ROLLING
Utility
WELL | SEPTIC
Zoning
Please contact your municipal zoning officer
Deed Book
1350
Deed Page
1877
2026 Tax Values
Land Value / Taxable
32,700 / 32,700.00
Building Value / Taxable
54,890 / 54,890.00
Total Value / Taxable
87,590 / 87,590.00
Clean & Green
Inactive
Homestead Status
Inactive
Farmstead Status
Inactive
Lerta Amount
0
Lerta Expiration Year
0
Residential Data
Card 1
Style
BUNGALOW
Basement
CRAWL
Year Built
1930
Exterior Wall
ALUMINUM/VINYL
Total Living Area
1149
Full Baths
1
Half Baths
0
Fuel Type
GAS
Heating
CENTRAL
Heating System
FORCED AIR
Stories
1.0
Total Bedrooms
2
Total Family Rooms
0
Total Rooms
5
Fireplaces
0
Other Buildings & Yards
Description
Built
Width
Length
Area
FRAME OR CB DETACHED GARAGE
1990
28
24
672
FRAME UTILITY SHED
1999
16
24
384
Sales History
Sale Date
Type
Price
Book / Page
Other Info
8/7/2006
LAND & BUILDING
67000
1350 / 1877
DEED
2/28/2006
LAND & BUILDING
2652
1309 / 0502
SHERIFF'S DED
12/29/1999
LAND & BUILDING
25000
/
10/30/1999
0
0681 / 0865
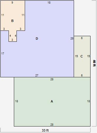
Parcel Sketches
Residential Card 1
A
MAIN
504 square feet
B
OFP OPEN FRAME PORCH
111 square feet
C
EFP ENCL FRAME PORCH
90 square feet
D
1S FR ONE STORY FRAME
645 square feet
Parcel Images
Please note:
this tab is for informational purposes only and may not show all delinquencies, see the Taxes tab for more accurate delinquent taxes due.