Elected Officials
Courts
Departments
Initiatives
Open Government
About
Login / Register
Home
/
Property & Tax Records
/
Property Records
/
Property & Tax Search
/
Parcel Profile
/
Print View
Search for Another Parcel
Parcel Profile
Historical Card
Sketches
Photos
Tax Map
Taxes
Print View
Print This Page
Address: 16 SUMMER ST
Parcel: 05020104003501
Parcel Profile
Address
16 | SUMMER | ST
Street Status
UNPAVED
School District
CORRY AREA SCHOOL
Acreage
1.2100
Classification
R
Land Use Code
SINGLE FAMILY
Legal Description
16 SUMMER ST 1.21 AC
Square Feet
1576
Topo
LEVEL
Utility
ALL PUBLIC
Zoning
Please contact your municipal zoning officer
Deed Book
1596
Deed Page
0230
2026 Tax Values
Land Value / Taxable
10,500 / 10,500.00
Building Value / Taxable
70,800 / 70,800.00
Total Value / Taxable
81,300 / 81,300.00
Clean & Green
Inactive
Homestead Status
Active
Farmstead Status
Inactive
Lerta Amount
0
Lerta Expiration Year
0
Residential Data
Card 1
Style
OLD STYLE
Basement
FULL
Year Built
1880
Exterior Wall
ALUMINUM/VINYL
Total Living Area
1576
Full Baths
2
Half Baths
0
Fuel Type
GAS
Heating
CENTRAL
Heating System
FORCED AIR
Stories
2.0
Total Bedrooms
4
Total Family Rooms
1
Total Rooms
8
Fireplaces
0
Other Buildings & Yards
Description
Built
Width
Length
Area
FRAME OR CB DETACHED GARAGE
1988
24
32
768
Sales History
Sale Date
Type
Price
Book / Page
Other Info
9/6/1985
0
1596 / 0230
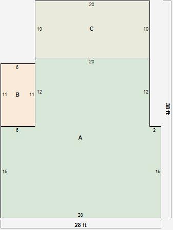
Parcel Sketches
Residential Card 1
A
MAIN
688 square feet
B
OFP OPEN FRAME PORCH
66 square feet
C
1S FR ONE STORY FRAME
200 square feet
Parcel Images
Please note:
this tab is for informational purposes only and may not show all delinquencies, see the Taxes tab for more accurate delinquent taxes due.