Elected Officials
Courts
Departments
Initiatives
Open Government
About
Login / Register
Home
/
Property & Tax Records
/
Property Records
/
Property & Tax Search
/
Parcel Profile
/
Print View
Search for Another Parcel
Parcel Profile
Historical Card
Sketches
Photos
Tax Map
Taxes
Print View
Print This Page
Address: 573 LIBERTY ST
Parcel: 05021104003900
Parcel Profile
Address
573 | LIBERTY | ST
Street Status
PAVED
School District
CORRY AREA SCHOOL
Acreage
0.5000
Classification
R
Land Use Code
SINGLE FAMILY
Legal Description
573 LIBERTY ST TR 52 132X165
Square Feet
1116
Topo
LEVEL
Utility
ALL PUBLIC
Zoning
Please contact your municipal zoning officer
Deed Book
1200
Deed Page
0152
2026 Tax Values
Land Value / Taxable
8,000 / 8,000.00
Building Value / Taxable
43,500 / 43,500.00
Total Value / Taxable
51,500 / 51,500.00
Clean & Green
Inactive
Homestead Status
Active
Farmstead Status
Inactive
Lerta Amount
0
Lerta Expiration Year
0
Residential Data
Card 1
Style
CONVENTIONAL
Basement
FULL
Year Built
1930
Exterior Wall
FRAME
Total Living Area
1116
Full Baths
1
Half Baths
1
Fuel Type
GAS
Heating
CENTRAL
Heating System
FORCED AIR
Stories
1.5
Total Bedrooms
2
Total Family Rooms
1
Total Rooms
5
Fireplaces
0
Other Buildings & Yards
Description
Built
Width
Length
Area
FOUR SIDE CLOSED WD POLE BLDG
2011
22
22
484
Sales History
Sale Date
Type
Price
Book / Page
Other Info
2/27/1976
0
1200 / 0152
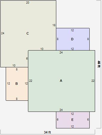
Parcel Sketches
Residential Card 1
A
MAIN
528 square feet
B
1S FR ONE STORY FRAME
96 square feet
C
WDDCK WOOD DECKS
420 square feet
D
1S FR ONE STORY FRAME
96 square feet
E
EFP ENCL FRAME PORCH
72 square feet
Parcel Images
Please note:
this tab is for informational purposes only and may not show all delinquencies, see the Taxes tab for more accurate delinquent taxes due.