Elected Officials
Courts
Departments
Initiatives
Open Government
About
Login / Register
Home
/
Property & Tax Records
/
Property Records
/
Property & Tax Search
/
Parcel Profile
/
Print View
Search for Another Parcel
Parcel Profile
Historical Card
Sketches
Photos
Tax Map
Taxes
Print View
Print This Page
Address: 543 LIBERTY ST
Parcel: 05021104100400
Parcel Profile
Address
543 | LIBERTY | ST
Street Status
PAVED
School District
CORRY AREA SCHOOL
Acreage
0.5000
Classification
R
Land Use Code
SINGLE FAMILY
Legal Description
543 LIBERTY ST 132 X 165
Square Feet
1277
Topo
LEVEL
Utility
ALL PUBLIC
Zoning
Please contact your municipal zoning officer
Deed Book
2021
Deed Page
024562
2026 Tax Values
Land Value / Taxable
8,000 / 8,000.00
Building Value / Taxable
37,800 / 37,800.00
Total Value / Taxable
45,800 / 45,800.00
Clean & Green
Inactive
Homestead Status
Inactive
Farmstead Status
Inactive
Lerta Amount
0
Lerta Expiration Year
0
Residential Data
Card 1
Style
BUNGALOW
Basement
FULL
Year Built
1850
Exterior Wall
ALUMINUM/VINYL
Total Living Area
1277
Full Baths
1
Half Baths
0
Fuel Type
GAS
Heating
CENTRAL
Heating System
FORCED AIR
Stories
1.0
Total Bedrooms
2
Total Family Rooms
1
Total Rooms
5
Fireplaces
0
Other Buildings & Yards
No OBY Data Found
Sales History
Sale Date
Type
Price
Book / Page
Other Info
9/14/2021
LAND & BUILDING
0
2021 / 024562
FIDUCIARY DEED
10/3/1970
0
1031 / 0439
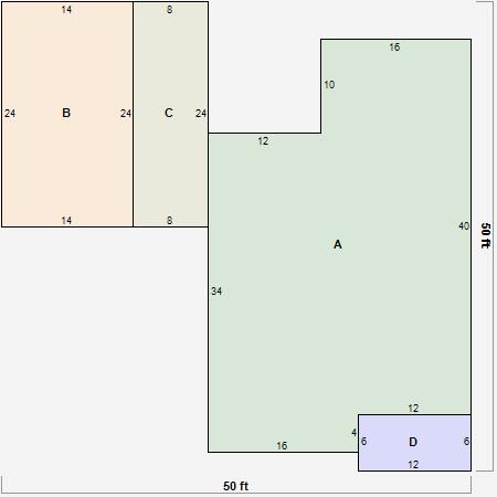
Parcel Sketches
Residential Card 1
A
MAIN
1064 square feet
B
FR GR FRAME GARAGE
336 square feet
C
OFP OPEN FRAME PORCH
192 square feet
D
OFP OPEN FRAME PORCH
72 square feet
Parcel Images
Please note:
this tab is for informational purposes only and may not show all delinquencies, see the Taxes tab for more accurate delinquent taxes due.