Elected Officials
Courts
Departments
Initiatives
Open Government
About
Login / Register
Home
/
Property & Tax Records
/
Property Records
/
Property & Tax Search
/
Parcel Profile
/
Print View
Search for Another Parcel
Parcel Profile
Historical Card
Sketches
Photos
Tax Map
Taxes
Print View
Print This Page
Address: 18 E SOUTH ST
Parcel: 05027168000200
Parcel Profile
Address
18 | E | SOUTH | ST
Street Status
PAVED | SIDEWALK
School District
CORRY AREA SCHOOL
Acreage
0.1361
Classification
E
Land Use Code
EXEMPT LOCAL GOVERNMENT (TWP & BORO)
Legal Description
18 E SOUTH ST TR 52 57X104
Square Feet
3343
Topo
LEVEL
Utility
ALL PUBLIC
Zoning
Please contact your municipal zoning officer
Deed Book
0998
Deed Page
0109
2026 Tax Values
Land Value / Taxable
10,300 / 10,300.00
Building Value / Taxable
165,900 / 165,900.00
Total Value / Taxable
176,200 / 176,200.00
Clean & Green
Inactive
Homestead Status
Inactive
Farmstead Status
Inactive
Lerta Amount
0
Lerta Expiration Year
0
Commercial Data
Card 1
POLICE/FIRE STATIONS
Business Living Area - 3343
Year Built - 1980
Improvement Name - CORRY POLICE DEPARTMENT
Value - 110580
Other Buildings & Yards
No OBY Data Found
Sales History
Sale Date
Type
Price
Book / Page
Other Info
3/1/1969
0
0998 / 0109
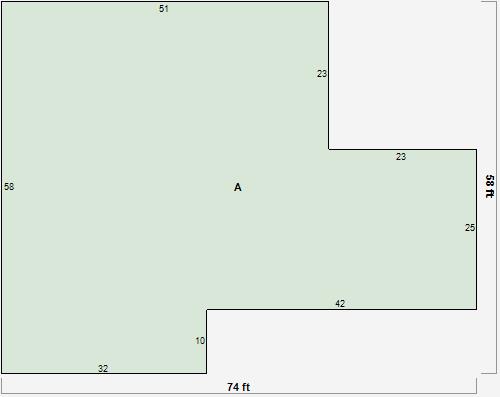
Parcel Sketches
Commercial Card 1
A
MAIN
3343 square feet
Parcel Images
Please note:
this tab is for informational purposes only and may not show all delinquencies, see the Taxes tab for more accurate delinquent taxes due.