Elected Officials
Courts
Departments
Initiatives
Open Government
About
Login / Register
Home
/
Property & Tax Records
/
Property Records
/
Property & Tax Search
/
Parcel Profile
/
Print View
Search for Another Parcel
Parcel Profile
Historical Card
Sketches
Photos
Tax Map
Taxes
Print View
Print This Page
Address: 45 E PLEASANT ST
Parcel: 05027168001500
Parcel Profile
Address
45 | E | PLEASANT | ST
Street Status
PAVED | SIDEWALK
School District
CORRY AREA SCHOOL
Acreage
0.1653
Classification
R
Land Use Code
TWO FAMILY
Legal Description
45 E PLEASANT ST 60X120
Square Feet
2136
Topo
LEVEL
Utility
ALL PUBLIC
Zoning
Please contact your municipal zoning officer
Deed Book
2024
Deed Page
016927
2026 Tax Values
Land Value / Taxable
6,300 / 6,300.00
Building Value / Taxable
58,000 / 58,000.00
Total Value / Taxable
64,300 / 64,300.00
Clean & Green
Inactive
Homestead Status
Inactive
Farmstead Status
Inactive
Lerta Amount
0
Lerta Expiration Year
0
Residential Data
Card 1
Style
OLD STYLE
Basement
FULL
Year Built
1917
Exterior Wall
ALUMINUM/VINYL
Total Living Area
2136
Full Baths
2
Half Baths
0
Fuel Type
GAS
Heating
CENTRAL
Heating System
HOT WATER
Stories
2.0
Total Bedrooms
4
Total Family Rooms
0
Total Rooms
8
Fireplaces
0
Other Buildings & Yards
Description
Built
Width
Length
Area
FRAME UTILITY SHED
1990
10
12
120
Sales History
Sale Date
Type
Price
Book / Page
Other Info
10/17/2024
LAND & BUILDING
52000
2024 / 016927
SPECIAL WARRANTY DEED
1/21/1993
0
0250 / 1112
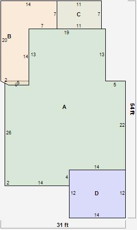
Parcel Sketches
Residential Card 1
A
MAIN
971 square feet
B
1S FR ONE STORY FRAME
194 square feet
C
EFP ENCL FRAME PORCH EFP ENCL FRAME PORCH
77 square feet
D
EFP ENCL FRAME PORCH
168 square feet
Parcel Images
Please note:
this tab is for informational purposes only and may not show all delinquencies, see the Taxes tab for more accurate delinquent taxes due.