Elected Officials
Courts
Departments
Initiatives
Open Government
About
Login / Register
Home
/
Property & Tax Records
/
Property Records
/
Property & Tax Search
/
Parcel Profile
/
Print View
Search for Another Parcel
Parcel Profile
Historical Card
Sketches
Photos
Tax Map
Taxes
Print View
Print This Page
Address: 130 E PLEASANT ST
Parcel: 05027173000500
Parcel Profile
Address
130 | E | PLEASANT | ST
Street Status
PAVED | SIDEWALK
School District
CORRY AREA SCHOOL
Acreage
0.4542
Classification
R
Land Use Code
SINGLE FAMILY
Legal Description
130 E PLEASANT ST 118.5 X 168 IRR
Square Feet
1618
Topo
ABOVE STREET
Utility
ALL PUBLIC
Zoning
Please contact your municipal zoning officer
Deed Book
2017
Deed Page
018437
2026 Tax Values
Land Value / Taxable
7,800 / 7,800.00
Building Value / Taxable
60,800 / 60,800.00
Total Value / Taxable
68,600 / 68,600.00
Clean & Green
Inactive
Homestead Status
Active
Farmstead Status
Inactive
Lerta Amount
0
Lerta Expiration Year
0
Residential Data
Card 1
Style
OLD STYLE
Basement
PART
Year Built
1920
Exterior Wall
COMPOSITION
Total Living Area
1618
Full Baths
1
Half Baths
0
Fuel Type
GAS
Heating
CENTRAL
Heating System
HOT WATER
Stories
2.0
Total Bedrooms
3
Total Family Rooms
1
Total Rooms
10
Fireplaces
0
Other Buildings & Yards
Description
Built
Width
Length
Area
FRAME OR CB DETACHED GARAGE
1996
26
36
936
Sales History
Sale Date
Type
Price
Book / Page
Other Info
8/24/2017
LAND & BUILDING
77000
2017 / 018437
DEED
8/7/2009
LAND & BUILDING
0
1582 / 1001
DEED
8/17/1962
0
0862 / 0289
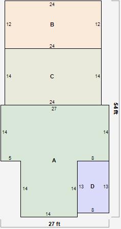
Parcel Sketches
Residential Card 1
A
MAIN
574 square feet
B
OFP OPEN FRAME PORCH
288 square feet
C
UNFIN BSMT BASEMENT UNFINISHED 1S FR ONE STORY FRAME AT FN ATTIC-FINISHED
336 square feet
D
EFP ENCL FRAME PORCH
104 square feet
Parcel Images
Please note:
this tab is for informational purposes only and may not show all delinquencies, see the Taxes tab for more accurate delinquent taxes due.