Elected Officials
Courts
Departments
Initiatives
Open Government
About
Login / Register
Home
/
Property & Tax Records
/
Property Records
/
Property & Tax Search
/
Parcel Profile
/
Print View
Search for Another Parcel
Parcel Profile
Historical Card
Sketches
Photos
Tax Map
Taxes
Print View
Print This Page
Address: 327 EAST ST
Parcel: 05027179000800
Parcel Profile
Address
327 | EAST | ST
Street Status
PAVED | SIDEWALK
School District
CORRY AREA SCHOOL
Acreage
0.2391
Classification
R
Land Use Code
SINGLE FAMILY
Legal Description
327 EAST ST 84X123.73
Square Feet
1932
Topo
LEVEL
Utility
ALL PUBLIC
Zoning
Please contact your municipal zoning officer
Deed Book
1325
Deed Page
0582
2026 Tax Values
Land Value / Taxable
6,700 / 6,700.00
Building Value / Taxable
74,300 / 74,300.00
Total Value / Taxable
81,000 / 81,000.00
Clean & Green
Inactive
Homestead Status
Active
Farmstead Status
Inactive
Lerta Amount
0
Lerta Expiration Year
0
Residential Data
Card 1
Style
BUNGALOW
Basement
FULL
Year Built
1920
Exterior Wall
BRICK
Total Living Area
1932
Full Baths
1
Half Baths
0
Fuel Type
GAS
Heating
CENTRAL
Heating System
HOT WATER
Stories
1.0
Total Bedrooms
5
Total Family Rooms
0
Total Rooms
8
Fireplaces
1
Other Buildings & Yards
Description
Built
Width
Length
Area
BRICK OR STONE DETACHED GAR.
1920
24
24
576
Sales History
Sale Date
Type
Price
Book / Page
Other Info
10/19/1978
0
1325 / 0582
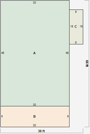
Parcel Sketches
Residential Card 1
A
MAIN
1380 square feet
B
OMP OPEN MASONRY PORCH
270 square feet
C
EFP ENCL FRAME PORCH
90 square feet
Parcel Images
Please note:
this tab is for informational purposes only and may not show all delinquencies, see the Taxes tab for more accurate delinquent taxes due.