Elected Officials
Courts
Departments
Initiatives
Open Government
About
Login / Register
Home
/
Property & Tax Records
/
Property Records
/
Property & Tax Search
/
Parcel Profile
/
Print View
Search for Another Parcel
Parcel Profile
Historical Card
Sketches
Photos
Tax Map
Taxes
Print View
Print This Page
Address: 217 E PLEASANT ST
Parcel: 05027179000900
Parcel Profile
Address
217 | E | PLEASANT | ST
Street Status
PAVED | SIDEWALK
School District
CORRY AREA SCHOOL
Acreage
0.2576
Classification
R
Land Use Code
SINGLE FAMILY
Legal Description
217 E PLEASANT ST 67.54X165
Square Feet
1344
Topo
LEVEL
Utility
PUBLIC WATER | PUBLIC SEWER | GAS
Zoning
Please contact your municipal zoning officer
Deed Book
0685
Deed Page
1192
2026 Tax Values
Land Value / Taxable
6,800 / 6,800.00
Building Value / Taxable
53,100 / 53,100.00
Total Value / Taxable
59,900 / 59,900.00
Clean & Green
Inactive
Homestead Status
Active
Farmstead Status
Inactive
Lerta Amount
0
Lerta Expiration Year
0
Residential Data
Card 1
Style
OLD STYLE
Basement
FULL
Year Built
1900
Exterior Wall
FRAME
Total Living Area
1344
Full Baths
1
Half Baths
0
Fuel Type
GAS
Heating
CENTRAL
Heating System
FORCED AIR
Stories
2.0
Total Bedrooms
3
Total Family Rooms
0
Total Rooms
7
Fireplaces
0
Other Buildings & Yards
Description
Built
Width
Length
Area
FRAME OR CB DETACHED GARAGE
1930
25
36
900
Sales History
Sale Date
Type
Price
Book / Page
Other Info
1/28/2000
LAND & BUILDING
50000
0685 / 1192
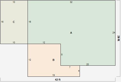
Parcel Sketches
Residential Card 1
A
MAIN
672 square feet
B
EFP ENCL FRAME PORCH
172 square feet
C
EFP ENCL FRAME PORCH
160 square feet
Parcel Images
Please note:
this tab is for informational purposes only and may not show all delinquencies, see the Taxes tab for more accurate delinquent taxes due.