Elected Officials
Courts
Departments
Initiatives
Open Government
About
Login / Register
Home
/
Property & Tax Records
/
Property Records
/
Property & Tax Search
/
Parcel Profile
/
Print View
Search for Another Parcel
Parcel Profile
Historical Card
Sketches
Photos
Tax Map
Taxes
Print View
Print This Page
Address: 212 KING ST
Parcel: 05027179001300
Parcel Profile
Address
212 | KING | ST
Street Status
PAVED | SIDEWALK
School District
CORRY AREA SCHOOL
Acreage
0.1927
Classification
R
Land Use Code
SINGLE FAMILY
Legal Description
212 KING ST TR 52 65X82.5
Square Feet
1420
Topo
LEVEL
Utility
PUBLIC WATER | PUBLIC SEWER | GAS
Zoning
Please contact your municipal zoning officer
Deed Book
2017
Deed Page
019261
2026 Tax Values
Land Value / Taxable
6,400 / 6,400.00
Building Value / Taxable
47,900 / 47,900.00
Total Value / Taxable
54,300 / 54,300.00
Clean & Green
Inactive
Homestead Status
Inactive
Farmstead Status
Inactive
Lerta Amount
0
Lerta Expiration Year
0
Residential Data
Card 1
Style
OLD STYLE
Basement
PART
Year Built
1880
Exterior Wall
ALUMINUM/VINYL
Total Living Area
1420
Full Baths
1
Half Baths
1
Fuel Type
GAS
Heating
CENTRAL
Heating System
FORCED AIR
Stories
2.0
Total Bedrooms
3
Total Family Rooms
0
Total Rooms
12
Fireplaces
0
Other Buildings & Yards
Description
Built
Width
Length
Area
FRAME OR CB DETACHED GARAGE
1920
12
18
216
Sales History
Sale Date
Type
Price
Book / Page
Other Info
9/5/2017
LAND & BUILDING
52000
2017 / 019261
FIDUCIARY DEED
9/13/1963
0
0883 / 0047
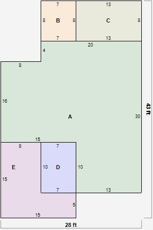
Parcel Sketches
Residential Card 1
A
MAIN
658 square feet
B
EFP ENCL FRAME PORCH
56 square feet
C
1S FR ONE STORY FRAME
104 square feet
D
EFP ENCL FRAME PORCH EFP ENCL FRAME PORCH
70 square feet
E
WDDCK WOOD DECKS
155 square feet
Parcel Images
Please note:
this tab is for informational purposes only and may not show all delinquencies, see the Taxes tab for more accurate delinquent taxes due.