Elected Officials
Courts
Departments
Initiatives
Open Government
About
Login / Register
Home
/
Property & Tax Records
/
Property Records
/
Property & Tax Search
/
Parcel Profile
/
Print View
Search for Another Parcel
Parcel Profile
Historical Card
Sketches
Photos
Tax Map
Taxes
Print View
Print This Page
Address: 320 E MAIN ST
Parcel: 05027180000400
Parcel Profile
Address
320 | E | MAIN | ST
Street Status
PAVED | SIDEWALK
School District
CORRY AREA SCHOOL
Acreage
0.0909
Classification
R
Land Use Code
SINGLE FAMILY
Legal Description
320 E MAIN ST TR 52 37X107.25
Square Feet
1428
Topo
LEVEL
Utility
PUBLIC WATER | PUBLIC SEWER | GAS
Zoning
Please contact your municipal zoning officer
Deed Book
2024
Deed Page
006138
2026 Tax Values
Land Value / Taxable
5,600 / 5,600.00
Building Value / Taxable
36,460 / 36,460.00
Total Value / Taxable
42,060 / 42,060.00
Clean & Green
Inactive
Homestead Status
Inactive
Farmstead Status
Inactive
Lerta Amount
0
Lerta Expiration Year
0
Residential Data
Card 1
Style
OLD STYLE
Basement
PART
Year Built
1860
Exterior Wall
ALUMINUM/VINYL
Total Living Area
1428
Full Baths
1
Half Baths
0
Fuel Type
GAS
Heating
CENTRAL
Heating System
FORCED AIR
Stories
2.0
Total Bedrooms
3
Total Family Rooms
0
Total Rooms
7
Fireplaces
0
Other Buildings & Yards
No OBY Data Found
Sales History
Sale Date
Type
Price
Book / Page
Other Info
4/25/2024
LAND & BUILDING
19200
2024 / 006138
QUIT CLAIM DEED
4/25/2024
LAND & BUILDING
0
2024 / 006137
CORRECTIVE DEED
3/20/2014
LAND & BUILDING
0
2014 / 004902
TAX DEED
5/13/1994
0
0334 / 0667
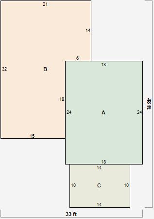
Parcel Sketches
Residential Card 1
A
MAIN
432 square feet
B
1S FR ONE STORY FRAME
564 square feet
C
EFP ENCL FRAME PORCH
140 square feet
Parcel Images
Please note:
this tab is for informational purposes only and may not show all delinquencies, see the Taxes tab for more accurate delinquent taxes due.