Elected Officials
Courts
Departments
Initiatives
Open Government
About
Login / Register
Home
/
Property & Tax Records
/
Property Records
/
Property & Tax Search
/
Parcel Profile
/
Print View
Search for Another Parcel
Parcel Profile
Historical Card
Sketches
Photos
Tax Map
Taxes
Print View
Print This Page
Address: 326 E MAIN ST
Parcel: 05027180000600
Parcel Profile
Address
326 | E | MAIN | ST
Street Status
PAVED | SIDEWALK
School District
CORRY AREA SCHOOL
Acreage
0.0413
Classification
R
Land Use Code
SINGLE FAMILY
Legal Description
326 E MAIN ST TR 52 30.42X60
Square Feet
1392
Topo
LEVEL
Utility
PUBLIC WATER | PUBLIC SEWER | GAS
Zoning
Please contact your municipal zoning officer
Deed Book
1147
Deed Page
0190
2026 Tax Values
Land Value / Taxable
4,700 / 4,700.00
Building Value / Taxable
27,700 / 27,700.00
Total Value / Taxable
32,400 / 32,400.00
Clean & Green
Inactive
Homestead Status
Inactive
Farmstead Status
Inactive
Lerta Amount
0
Lerta Expiration Year
0
Residential Data
Card 1
Style
OLD STYLE
Basement
FULL
Year Built
1920
Exterior Wall
FRAME
Total Living Area
1392
Full Baths
1
Half Baths
0
Fuel Type
GAS
Heating
CENTRAL
Heating System
FORCED AIR
Stories
2.0
Total Bedrooms
3
Total Family Rooms
0
Total Rooms
6
Fireplaces
0
Other Buildings & Yards
No OBY Data Found
Sales History
Sale Date
Type
Price
Book / Page
Other Info
4/22/1975
0
1147 / 0190
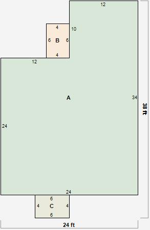
Parcel Sketches
Residential Card 1
A
MAIN
696 square feet
B
EFP ENCL FRAME PORCH
24 square feet
C
MA STOOP/TERR MAS STOOP
24 square feet
Parcel Images
Please note:
this tab is for informational purposes only and may not show all delinquencies, see the Taxes tab for more accurate delinquent taxes due.