Address: 219 EAST ST   Parcel: 05027180001000
Parcel Profile
Address219 | EAST | ST
Street StatusPAVED
School DistrictCORRY AREA SCHOOL
Acreage0.0892
ClassificationR
Land Use CodeSINGLE FAMILY
Legal Description219 EAST ST TR 52 57.5 X 67
Square Feet1386
TopoLEVEL
UtilityPUBLIC WATER | PUBLIC SEWER | GAS
ZoningPlease contact your municipal zoning officer
Deed Book2021
Deed Page016850
2026 Tax Values
Land Value / Taxable5,500 / 5,500.00
Building Value / Taxable36,600 / 36,600.00
Total Value / Taxable42,100 / 42,100.00
Clean & GreenInactive
Homestead StatusInactive
Farmstead StatusInactive
Lerta Amount0
Lerta Expiration Year0
Residential Data
Card 1
     StyleCONVENTIONAL
     BasementPART
     Year Built1930
     Exterior WallALUMINUM/VINYL
     Total Living Area1386
     Full Baths1
     Half Baths0
     Fuel TypeGAS
     HeatingCENTRAL
     Heating SystemFORCED AIR
     Stories2.0
     Total Bedrooms3
     Total Family Rooms0
     Total Rooms6
     Fireplaces0
Other Buildings & Yards
No OBY Data Found
Sales History
Sale DateTypePriceBook / PageOther Info
6/29/2021LAND & BUILDING300002021 / 016850SPECIAL WARRANTY DEED
9/16/2015LAND & BUILDING02015 / 020364SPECIAL WARRANTY DEED
5/18/2009LAND & BUILDING170001562 / 1125QUIT CLAIM DEED
3/11/2009LAND & BUILDING01548 / 0294QUIT CLAIM DEED



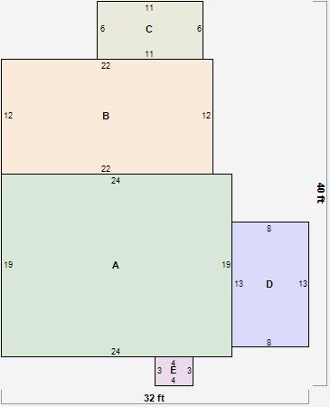
Parcel Sketches

Residential Card 1

Residential Card 1
AMAIN456 square feet
BUNFIN BSMT BASEMENT UNFINISHED 1S FR ONE STORY FRAME AT FN ATTIC-FINISHED 264 square feet
C EFP ENCL FRAME PORCH 66 square feet
D 1S FR ONE STORY FRAME 104 square feet
E OFP OPEN FRAME PORCH 12 square feet

Parcel Images

parcel photoparcel photo