Elected Officials
Courts
Departments
Initiatives
Open Government
About
Login / Register
Home
/
Property & Tax Records
/
Property Records
/
Property & Tax Search
/
Parcel Profile
/
Print View
Search for Another Parcel
Parcel Profile
Historical Card
Sketches
Photos
Tax Map
Taxes
Print View
Print This Page
Address: 738 45 E MAIN ST
Parcel: 05028109000200
Parcel Profile
Address
738 | 45 | E | MAIN | ST
Street Status
PAVED | SIDEWALK
School District
CORRY AREA SCHOOL
Acreage
0.4874
Classification
R
Land Use Code
MULTIPLE DWELLINGS
Legal Description
738 45 E MAIN ST 157.49 X 180 IRR
Square Feet
2564
Topo
LEVEL
Utility
ALL PUBLIC
Zoning
Please contact your municipal zoning officer
Deed Book
1593
Deed Page
0119
2026 Tax Values
Land Value / Taxable
8,000 / 8,000.00
Building Value / Taxable
59,500 / 59,500.00
Total Value / Taxable
67,500 / 67,500.00
Clean & Green
Inactive
Homestead Status
Inactive
Farmstead Status
Inactive
Lerta Amount
0
Lerta Expiration Year
0
Residential Data
Card 1
Style
BUNGALOW
Basement
FULL
Year Built
1900
Exterior Wall
FRAME
Total Living Area
1290
Full Baths
1
Half Baths
0
Fuel Type
GAS
Heating
CENTRAL
Heating System
FORCED AIR
Stories
1.5
Total Bedrooms
4
Total Family Rooms
0
Total Rooms
8
Fireplaces
0
Card 2
Style
BUNGALOW
Basement
NONE
Year Built
1900
Exterior Wall
FRAME
Total Living Area
474
Full Baths
1
Half Baths
0
Fuel Type
GAS
Heating
CENTRAL
Heating System
FORCED AIR
Stories
1.0
Total Bedrooms
1
Total Family Rooms
0
Total Rooms
2
Fireplaces
0
Card 3
Style
BUNGALOW
Basement
NONE
Year Built
1900
Exterior Wall
ALUMINUM/VINYL
Total Living Area
800
Full Baths
2
Half Baths
0
Fuel Type
GAS
Heating
CENTRAL
Heating System
HOT WATER
Stories
1.0
Total Bedrooms
2
Total Family Rooms
0
Total Rooms
4
Fireplaces
0
Other Buildings & Yards
No OBY Data Found
Sales History
Sale Date
Type
Price
Book / Page
Other Info
9/25/2009
LAND & BUILDING
13000
1593 / 0119
WARRANTY/SURVIVORSHIP DEED
4/5/2004
LAND & BUILDING
0
1121 / 1031
QUIT CLAIM DEED
7/23/2003
LAND & BUILDING
31403
1039 / 1272
WARRANTY/SURVIVORSHIP DEED
6/17/2002
LAND & BUILDING
19000
890 / 662
SPECIAL WARRANTY DEED
Parcel Sketches
Residential Card 1
A
MAIN
322 square feet
B
1S FR ONE STORY FRAME
64 square feet
C
MA_PT CONC/MAS PATIO
32 square feet
D
UNFIN BSMT BASEMENT UNFINISHED 1S FR ONE STORY FRAME
536 square feet
E
EFP ENCL FRAME PORCH
80 square feet
F
UNFIN BSMT BASEMENT UNFINISHED 1S FR ONE STORY FRAME
126 square feet
G
OFP OPEN FRAME PORCH
224 square feet
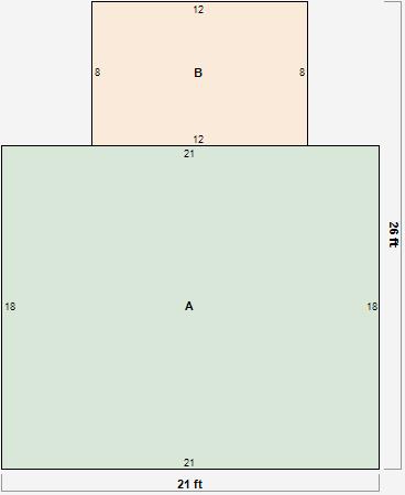
Residential Card 2
A
MAIN
378 square feet
B
1S FR ONE STORY FRAME
96 square feet
Residential Card 3
A
MAIN
800 square feet
Parcel Images
Please note:
this tab is for informational purposes only and may not show all delinquencies, see the Taxes tab for more accurate delinquent taxes due.