Elected Officials
Courts
Departments
Initiatives
Open Government
About
Login / Register
Home
/
Property & Tax Records
/
Property Records
/
Property & Tax Search
/
Parcel Profile
/
Print View
Search for Another Parcel
Parcel Profile
Historical Card
Sketches
Photos
Tax Map
Taxes
Print View
Print This Page
Address: 129 SUMMER ST
Parcel: 05028113001300
Parcel Profile
Address
129 | SUMMER | ST
Street Status
PAVED | SIDEWALK
School District
CORRY AREA SCHOOL
Acreage
0.4790
Classification
R
Land Use Code
SINGLE FAMILY
Legal Description
129 SUMMER ST TR 52 151.5' X 125.5' IRREG | 0.479 AC
Square Feet
1464
Topo
LEVEL
Utility
ALL PUBLIC
Zoning
Please contact your municipal zoning officer
Deed Book
2025
Deed Page
014775
2026 Tax Values
Land Value / Taxable
8,300 / 8,300.00
Building Value / Taxable
46,670 / 46,670.00
Total Value / Taxable
54,970 / 54,970.00
Clean & Green
Inactive
Homestead Status
Active
Farmstead Status
Inactive
Lerta Amount
0
Lerta Expiration Year
0
Residential Data
Card 1
Style
OLD STYLE
Basement
PART
Year Built
1910
Exterior Wall
ALUMINUM/VINYL
Total Living Area
1464
Full Baths
1
Half Baths
0
Fuel Type
GAS
Heating
CENTRAL
Heating System
FORCED AIR
Stories
2.0
Total Bedrooms
3
Total Family Rooms
0
Total Rooms
5
Fireplaces
0
Other Buildings & Yards
Description
Built
Width
Length
Area
FRAME OR CB DETACHED GARAGE
1940
12
22
264
FRAME UTILITY SHED
1995
10
11
110
Sales History
Sale Date
Type
Price
Book / Page
Other Info
8/28/2025
LAND & BUILDING
0
2025 / 014775
SPECIAL WARRANTY DEED
7/7/2005
LAND & BUILDING
0
1249 / 0491
QUIT CLAIM DEED
10/3/1997
0
0522 / 0807
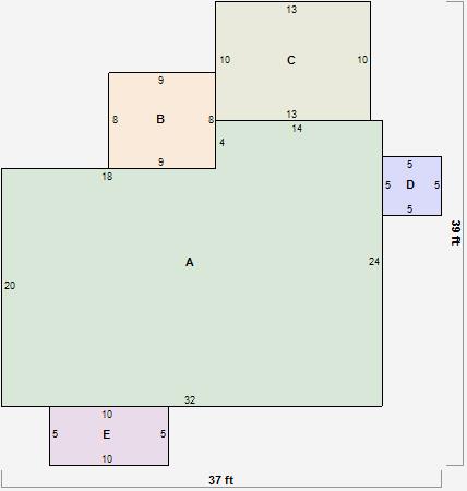
Parcel Sketches
Residential Card 1
A
MAIN
696 square feet
B
1S FR ONE STORY FRAME
72 square feet
C
OFP OPEN FRAME PORCH
130 square feet
D
OFP OPEN FRAME PORCH
25 square feet
E
OFP OPEN FRAME PORCH
50 square feet
Parcel Images
Please note:
this tab is for informational purposes only and may not show all delinquencies, see the Taxes tab for more accurate delinquent taxes due.