Elected Officials
Courts
Departments
Initiatives
Open Government
About
Login / Register
Home
/
Property & Tax Records
/
Property Records
/
Property & Tax Search
/
Parcel Profile
/
Print View
Search for Another Parcel
Parcel Profile
Historical Card
Sketches
Photos
Tax Map
Taxes
Print View
Print This Page
Address: 432 E MAIN ST
Parcel: 05028181000400
Parcel Profile
Address
432 | E | MAIN | ST
Street Status
PAVED | SIDEWALK
School District
CORRY AREA SCHOOL
Acreage
0.3125
Classification
R
Land Use Code
TWO FAMILY
Legal Description
432 E MAIN ST 82.5X165
Square Feet
3116
Topo
LEVEL
Utility
ALL PUBLIC
Zoning
Please contact your municipal zoning officer
Deed Book
2024
Deed Page
002853
2026 Tax Values
Land Value / Taxable
7,000 / 7,000.00
Building Value / Taxable
66,480 / 66,480.00
Total Value / Taxable
73,480 / 73,480.00
Clean & Green
Inactive
Homestead Status
Inactive
Farmstead Status
Inactive
Lerta Amount
0
Lerta Expiration Year
0
Residential Data
Card 1
Style
OLD STYLE
Basement
FULL
Year Built
1900
Exterior Wall
ALUMINUM/VINYL
Total Living Area
3116
Full Baths
2
Half Baths
0
Fuel Type
GAS
Heating
CENTRAL
Heating System
FORCED AIR
Stories
2.0
Total Bedrooms
5
Total Family Rooms
0
Total Rooms
9
Fireplaces
0
Other Buildings & Yards
No OBY Data Found
Sales History
Sale Date
Type
Price
Book / Page
Other Info
2/26/2024
LAND & BUILDING
150000
2024 / 002853
DEED
1/24/2024
LAND & BUILDING
150000
2024 / 001186
DEED
12/29/2003
LAND & BUILDING
0
1097 / 1427
WARRANTY/SURVIVORSHIP DEED
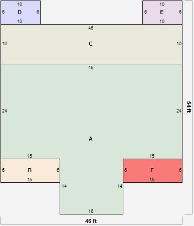
Parcel Sketches
Residential Card 1
A
MAIN
1328 square feet
B
OFP OPEN FRAME PORCH
90 square feet
C
1S FR ONE STORY FRAME
460 square feet
D
WDDCK WOOD DECKS
60 square feet
E
WDDCK WOOD DECKS
60 square feet
F
OFP OPEN FRAME PORCH
90 square feet
Parcel Images
Please note:
this tab is for informational purposes only and may not show all delinquencies, see the Taxes tab for more accurate delinquent taxes due.