Elected Officials
Courts
Departments
Initiatives
Open Government
About
Login / Register
Home
/
Property & Tax Records
/
Property Records
/
Property & Tax Search
/
Parcel Profile
/
Print View
Search for Another Parcel
Parcel Profile
Historical Card
Sketches
Photos
Tax Map
Taxes
Print View
Print This Page
Address: 429 E SOUTH ST
Parcel: 05028181001200
Parcel Profile
Address
429 | E | SOUTH | ST
Street Status
PAVED | SIDEWALK
School District
CORRY AREA SCHOOL
Acreage
0.4775
Classification
R
Land Use Code
SINGLE FAMILY
Legal Description
429 E SOUTH ST TR 52 104X120
Square Feet
2088
Topo
LEVEL
Utility
ALL PUBLIC
Zoning
Please contact your municipal zoning officer
Deed Book
2022
Deed Page
018933
2026 Tax Values
Land Value / Taxable
7,900 / 7,900.00
Building Value / Taxable
66,900 / 66,900.00
Total Value / Taxable
74,800 / 74,800.00
Clean & Green
Inactive
Homestead Status
Active
Farmstead Status
Inactive
Lerta Amount
0
Lerta Expiration Year
0
Residential Data
Card 1
Style
OLD STYLE
Basement
FULL
Year Built
1900
Exterior Wall
ALUMINUM/VINYL
Total Living Area
2088
Full Baths
1
Half Baths
0
Fuel Type
GAS
Heating
CENTRAL
Heating System
FORCED AIR
Stories
2.0
Total Bedrooms
4
Total Family Rooms
1
Total Rooms
8
Fireplaces
0
Other Buildings & Yards
Description
Built
Width
Length
Area
FRAME UTILITY SHED
2009
12
14
168
Sales History
Sale Date
Type
Price
Book / Page
Other Info
8/29/2022
LAND & BUILDING
0
2022 / 018933
SPECIAL WARRANTY DEED
11/7/2005
LAND & BUILDING
64500
1285 / 0740
DEED
1/14/2002
LAND & BUILDING
49500
843 / 925
1/12/1996
LAND & BUILDING
25000
420 / 1102
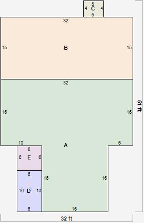
Parcel Sketches
Residential Card 1
A
MAIN
768 square feet
B
1S FR ONE STORY FRAME
480 square feet
C
OFP OPEN FRAME PORCH
20 square feet
D
WDDCK WOOD DECKS
60 square feet
E
1S FR ONE STORY FRAME FRBAY FRAME BAY
36 square feet
Parcel Images
Please note:
this tab is for informational purposes only and may not show all delinquencies, see the Taxes tab for more accurate delinquent taxes due.