Elected Officials
Courts
Departments
Initiatives
Open Government
About
Login / Register
Home
/
Property & Tax Records
/
Property Records
/
Property & Tax Search
/
Parcel Profile
/
Print View
Search for Another Parcel
Parcel Profile
Historical Card
Sketches
Photos
Tax Map
Taxes
Print View
Print This Page
Address: 220 EAST ST
Parcel: 05028181001600
Parcel Profile
Address
220 | EAST | ST
Street Status
PAVED | SIDEWALK
School District
CORRY AREA SCHOOL
Acreage
0.1476
Classification
R
Land Use Code
THREE FAMILY
Legal Description
220 EAST ST 68X103 IRR
Square Feet
2766
Topo
LEVEL
Utility
ALL PUBLIC
Zoning
Please contact your municipal zoning officer
Deed Book
2024
Deed Page
004123
2026 Tax Values
Land Value / Taxable
6,200 / 6,200.00
Building Value / Taxable
27,830 / 27,830.00
Total Value / Taxable
34,030 / 34,030.00
Clean & Green
Inactive
Homestead Status
Inactive
Farmstead Status
Inactive
Lerta Amount
0
Lerta Expiration Year
0
Residential Data
Card 1
Style
OLD STYLE
Basement
PART
Year Built
1900
Exterior Wall
STUCCO
Total Living Area
2766
Full Baths
3
Half Baths
0
Fuel Type
GAS
Heating
NON CENTRAL
Heating System
NONE
Stories
2.0
Total Bedrooms
5
Total Family Rooms
0
Total Rooms
11
Fireplaces
0
Other Buildings & Yards
No OBY Data Found
Sales History
Sale Date
Type
Price
Book / Page
Other Info
3/20/2024
LAND & BUILDING
0
2024 / 004123
SPECIAL WARRANTY DEED
7/27/1998
0
0576 / 1612
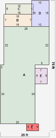
Parcel Sketches
Residential Card 1
A
MAIN
1252 square feet
B
1S FR ONE STORY FRAME
112 square feet
C
EFP ENCL FRAME PORCH
96 square feet
D
1S FR ONE STORY FRAME
150 square feet
E
OFP OPEN FRAME PORCH
63 square feet
F
OFP OPEN FRAME PORCH
28 square feet
Parcel Images
Please note:
this tab is for informational purposes only and may not show all delinquencies, see the Taxes tab for more accurate delinquent taxes due.