Elected Officials
Courts
Departments
Initiatives
Open Government
About
Login / Register
Home
/
Property & Tax Records
/
Property Records
/
Property & Tax Search
/
Parcel Profile
/
Print View
Search for Another Parcel
Parcel Profile
Historical Card
Sketches
Photos
Tax Map
Taxes
Print View
Print This Page
Address: 302 EAST ST
Parcel: 05028182000100
Parcel Profile
Address
302 | EAST | ST
Street Status
PAVED | SIDEWALK
School District
CORRY AREA SCHOOL
Acreage
0.1421
Classification
R
Land Use Code
SINGLE FAMILY
Legal Description
302 EAST ST TR 52 71.99X94 IRR
Square Feet
1641
Topo
LEVEL
Utility
ALL PUBLIC
Zoning
Please contact your municipal zoning officer
Deed Book
2012
Deed Page
009325
2026 Tax Values
Land Value / Taxable
6,100 / 6,100.00
Building Value / Taxable
28,900 / 28,900.00
Total Value / Taxable
35,000 / 35,000.00
Clean & Green
Inactive
Homestead Status
Inactive
Farmstead Status
Inactive
Lerta Amount
0
Lerta Expiration Year
0
Residential Data
Card 1
Style
OLD STYLE
Basement
FULL
Year Built
1920
Exterior Wall
ALUMINUM/VINYL
Total Living Area
1641
Full Baths
1
Half Baths
0
Fuel Type
GAS
Heating
CENTRAL
Heating System
FORCED AIR
Stories
2.0
Total Bedrooms
3
Total Family Rooms
0
Total Rooms
6
Fireplaces
0
Other Buildings & Yards
Description
Built
Width
Length
Area
FRAME OR CB DETACHED GARAGE
1920
20
28
560
Sales History
Sale Date
Type
Price
Book / Page
Other Info
4/16/2012
LAND & BUILDING
16000
2012 / 009325
DEED
10/5/2011
LAND & BUILDING
0
2011 / 023803
SHERIFF'S DED
2/6/1998
0
0541 / 1126
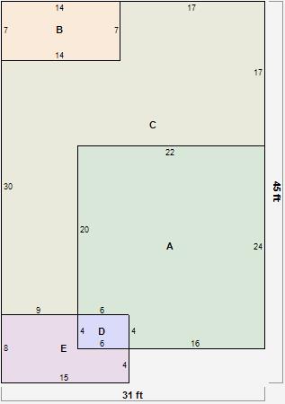
Parcel Sketches
Residential Card 1
A
MAIN
504 square feet
B
EFP ENCL FRAME PORCH
98 square feet
C
UNFIN BSMT BASEMENT UNFINISHED 1S FR ONE STORY FRAME
609 square feet
D
EFP ENCL FRAME PORCH 1S FR ONE STORY FRAME
24 square feet
E
EFP ENCL FRAME PORCH
96 square feet
Parcel Images
Please note:
this tab is for informational purposes only and may not show all delinquencies, see the Taxes tab for more accurate delinquent taxes due.