Elected Officials
Courts
Departments
Initiatives
Open Government
About
Login / Register
Home
/
Property & Tax Records
/
Property Records
/
Property & Tax Search
/
Parcel Profile
/
Print View
Search for Another Parcel
Parcel Profile
Historical Card
Sketches
Photos
Tax Map
Taxes
Print View
Print This Page
Address: 640 E MAIN ST
Parcel: 05028191000500
Parcel Profile
Address
640 | E | MAIN | ST
Street Status
PAVED | SIDEWALK
School District
CORRY AREA SCHOOL
Acreage
0.5303
Classification
R
Land Use Code
SINGLE FAMILY
Legal Description
640 E MAIN ST TR 52 47 X 181.86
Square Feet
1152
Topo
LEVEL
Utility
ALL PUBLIC
Zoning
Please contact your municipal zoning officer
Deed Book
2020
Deed Page
001465
2026 Tax Values
Land Value / Taxable
14,500 / 14,500.00
Building Value / Taxable
53,600 / 53,600.00
Total Value / Taxable
68,100 / 68,100.00
Clean & Green
Inactive
Homestead Status
Inactive
Farmstead Status
Inactive
Lerta Amount
0
Lerta Expiration Year
0
Residential Data
Card 1
Style
CONVENTIONAL
Basement
PART
Year Built
1920
Exterior Wall
ALUMINUM/VINYL
Total Living Area
1152
Full Baths
1
Half Baths
0
Fuel Type
GAS
Heating
CENTRAL
Heating System
FORCED AIR
Stories
1.0
Total Bedrooms
2
Total Family Rooms
0
Total Rooms
7
Fireplaces
0
Other Buildings & Yards
Description
Built
Width
Length
Area
FRAME UTILITY SHED
2010
12
10
120
Sales History
Sale Date
Type
Price
Book / Page
Other Info
1/23/2020
LAND & BUILDING
0
2020 / 001465
DEED
8/27/2013
LAND & BUILDING
62500
2013 / 022712
DEED
10/16/2007
LAND & BUILDING
0
1453 / 2176
SHERIFF'S DED
7/21/1997
0
0509 / 1559
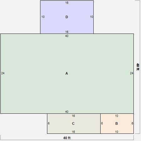
Parcel Sketches
Residential Card 1
A
MAIN
960 square feet
B
OFP OPEN FRAME PORCH
60 square feet
C
MA_PT CONC/MAS PATIO
96 square feet
D
MA_PT CONC/MAS PATIO
160 square feet
Parcel Images
Please note:
this tab is for informational purposes only and may not show all delinquencies, see the Taxes tab for more accurate delinquent taxes due.