Elected Officials
Courts
Departments
Initiatives
Open Government
About
Login / Register
Home
/
Property & Tax Records
/
Property Records
/
Property & Tax Search
/
Parcel Profile
/
Print View
Search for Another Parcel
Parcel Profile
Historical Card
Sketches
Photos
Tax Map
Taxes
Print View
Print This Page
Address: 803 E MAIN ST
Parcel: 05029104002400
Parcel Profile
Address
803 | E | MAIN | ST
Street Status
PAVED
School District
CORRY AREA SCHOOL
Acreage
0.1927
Classification
R
Land Use Code
SINGLE FAMILY
Legal Description
803 E MAIN ST TR 52 72 X 175
Square Feet
1032
Topo
LEVEL
Utility
ALL PUBLIC
Zoning
Please contact your municipal zoning officer
Deed Book
2017
Deed Page
024062
2026 Tax Values
Land Value / Taxable
6,400 / 6,400.00
Building Value / Taxable
33,250 / 33,250.00
Total Value / Taxable
39,650 / 39,650.00
Clean & Green
Inactive
Homestead Status
Active
Farmstead Status
Inactive
Lerta Amount
0
Lerta Expiration Year
0
Residential Data
Card 1
Style
OLD STYLE
Basement
FULL
Year Built
1930
Exterior Wall
ALUMINUM/VINYL
Total Living Area
1032
Full Baths
1
Half Baths
0
Fuel Type
GAS
Heating
CENTRAL
Heating System
FORCED AIR
Stories
2.0
Total Bedrooms
2
Total Family Rooms
0
Total Rooms
4
Fireplaces
0
Other Buildings & Yards
Description
Built
Width
Length
Area
FRAME OR CB DETACHED GARAGE
1930
14
30
420
Sales History
Sale Date
Type
Price
Book / Page
Other Info
11/1/2017
LAND & BUILDING
65720
2017 / 024062
SPECIAL WARRANTY DEED
4/1/2009
LAND & BUILDING
10000
1552 / 2108
SPECIAL WARRANTY DEED
4/10/2002
LAND & BUILDING
43000
869 / 2165
5/8/1995
LAND & BUILDING
27000
383 / 1037
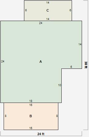
Parcel Sketches
Residential Card 1
A
MAIN
516 square feet
B
EFP ENCL FRAME PORCH
128 square feet
C
OFP OPEN FRAME PORCH
84 square feet
Parcel Images
Please note:
this tab is for informational purposes only and may not show all delinquencies, see the Taxes tab for more accurate delinquent taxes due.