Elected Officials
Courts
Departments
Initiatives
Open Government
About
Login / Register
Home
/
Property & Tax Records
/
Property Records
/
Property & Tax Search
/
Parcel Profile
/
Print View
Search for Another Parcel
Parcel Profile
Historical Card
Sketches
Photos
Tax Map
Taxes
Print View
Print This Page
Address: 809 E MAIN ST
Parcel: 05029104002500
Parcel Profile
Address
809 | E | MAIN | ST
Street Status
PAVED
School District
CORRY AREA SCHOOL
Acreage
0.3391
Classification
R
Land Use Code
SINGLE FAMILY
Legal Description
809 E MAIN ST 70.75 X 172 IRR
Square Feet
1080
Topo
LEVEL
Utility
ALL PUBLIC
Zoning
Please contact your municipal zoning officer
Deed Book
2022
Deed Page
015967
2026 Tax Values
Land Value / Taxable
7,200 / 7,200.00
Building Value / Taxable
56,000 / 56,000.00
Total Value / Taxable
63,200 / 63,200.00
Clean & Green
Inactive
Homestead Status
Active
Farmstead Status
Inactive
Lerta Amount
0
Lerta Expiration Year
0
Residential Data
Card 1
Style
OLD STYLE
Basement
FULL
Year Built
1925
Exterior Wall
ALUMINUM/VINYL
Total Living Area
1080
Full Baths
1
Half Baths
0
Fuel Type
GAS
Heating
CENTRAL
Heating System
HOT WATER
Stories
2.0
Total Bedrooms
2
Total Family Rooms
1
Total Rooms
7
Fireplaces
0
Other Buildings & Yards
Description
Built
Width
Length
Area
WOOD DECK
1989
0
0
138
PLASTIC LINER POOL
1989
16
32
512
FRAME OR CB DETACHED GARAGE
1930
24
24
576
WOOD DECK
1989
0
0
640
Sales History
Sale Date
Type
Price
Book / Page
Other Info
7/25/2022
LAND & BUILDING
70000
2022 / 015967
SPECIAL WARRANTY DEED
3/9/1972
0
1063 / 0393
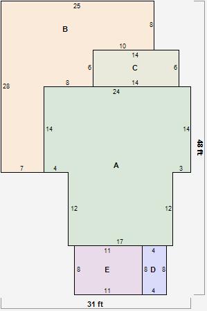
Parcel Sketches
Residential Card 1
A
MAIN
540 square feet
B
WDDCK WOOD DECKS
388 square feet
C
UNFIN BSMT BASEMENT UNFINISHED EFP ENCL FRAME PORCH
84 square feet
D
OFP OPEN FRAME PORCH
32 square feet
E
EMP ENCL MASONRY PORCH
88 square feet
Parcel Images
Please note:
this tab is for informational purposes only and may not show all delinquencies, see the Taxes tab for more accurate delinquent taxes due.