Elected Officials
Courts
Departments
Initiatives
Open Government
About
Login / Register
Home
/
Property & Tax Records
/
Property Records
/
Property & Tax Search
/
Parcel Profile
/
Print View
Search for Another Parcel
Parcel Profile
Historical Card
Sketches
Photos
Tax Map
Taxes
Print View
Print This Page
Address: 952 E MAIN ST
Parcel: 05029107000400
Parcel Profile
Address
952 | E | MAIN | ST
Street Status
PAVED
School District
CORRY AREA SCHOOL
Acreage
0.2009
Classification
R
Land Use Code
SINGLE FAMILY
Legal Description
952 E MAIN ST 50 X 175
Square Feet
957
Topo
LEVEL
Utility
ALL PUBLIC
Zoning
Please contact your municipal zoning officer
Deed Book
1410
Deed Page
1389
2026 Tax Values
Land Value / Taxable
6,500 / 6,500.00
Building Value / Taxable
34,300 / 34,300.00
Total Value / Taxable
40,800 / 40,800.00
Clean & Green
Inactive
Homestead Status
Inactive
Farmstead Status
Inactive
Lerta Amount
0
Lerta Expiration Year
0
Residential Data
Card 1
Style
BUNGALOW
Basement
FULL
Year Built
1930
Exterior Wall
ALUMINUM/VINYL
Total Living Area
957
Full Baths
1
Half Baths
0
Fuel Type
GAS
Heating
CENTRAL
Heating System
FORCED AIR
Stories
1.0
Total Bedrooms
4
Total Family Rooms
0
Total Rooms
7
Fireplaces
0
Other Buildings & Yards
Description
Built
Width
Length
Area
FRAME OR CB DETACHED GARAGE
1930
18
22
396
Sales History
Sale Date
Type
Price
Book / Page
Other Info
4/24/2007
LAND & BUILDING
10000
1410 / 1389
WARRANTY/SURVIVORSHIP DEED
3/12/2007
LAND & BUILDING
5500
1400 / 0290
DEED
2/1/2006
LAND & BUILDING
0
1303 / 1811
SHERIFF'S DED
11/4/1997
LAND & BUILDING
25000
529 / 1180
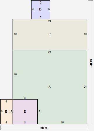
Parcel Sketches
Residential Card 1
A
MAIN
512 square feet
B
OFP OPEN FRAME PORCH
32 square feet
C
1S FR ONE STORY FRAME
240 square feet
D
EFP ENCL FRAME PORCH
36 square feet
E
UNFIN BSMT BASEMENT UNFINISHED EFP ENCL FRAME PORCH
64 square feet
Parcel Images