Elected Officials
Courts
Departments
Initiatives
Open Government
About
Login / Register
Home
/
Property & Tax Records
/
Property Records
/
Property & Tax Search
/
Parcel Profile
/
Print View
Search for Another Parcel
Parcel Profile
Historical Card
Sketches
Photos
Tax Map
Taxes
Print View
Print This Page
Address: 905 E SOUTH ST
Parcel: 05029193001100
Parcel Profile
Address
905 | E | SOUTH | ST
Street Status
PAVED | SIDEWALK
School District
CORRY AREA SCHOOL
Acreage
0.4558
Classification
R
Land Use Code
SINGLE FAMILY
Legal Description
905 E SOUTH ST TR 52 73.26X272
Square Feet
1184
Topo
LEVEL
Utility
ALL PUBLIC
Zoning
Please contact your municipal zoning officer
Deed Book
2022
Deed Page
008429
2026 Tax Values
Land Value / Taxable
7,800 / 7,800.00
Building Value / Taxable
26,880 / 26,880.00
Total Value / Taxable
34,680 / 34,680.00
Clean & Green
Inactive
Homestead Status
Active
Farmstead Status
Inactive
Lerta Amount
0
Lerta Expiration Year
0
Residential Data
Card 1
Style
OLD STYLE
Basement
FULL
Year Built
1900
Exterior Wall
ALUMINUM/VINYL
Total Living Area
1184
Full Baths
1
Half Baths
0
Fuel Type
GAS
Heating
CENTRAL
Heating System
HOT WATER
Stories
2.0
Total Bedrooms
3
Total Family Rooms
0
Total Rooms
6
Fireplaces
0
Other Buildings & Yards
Description
Built
Width
Length
Area
FRAME OR CB DETACHED GARAGE
1973
18
20
360
CANOPY
1973
10
20
200
Sales History
Sale Date
Type
Price
Book / Page
Other Info
4/20/2022
LAND & BUILDING
0
2022 / 008429
SPECIAL WARRANTY DEED
10/6/2010
LAND & BUILDING
28000
2010 / 024844
WARRANTY/SURVIVORSHIP DEED
8/9/1995
LAND & BUILDING
20000
397 / 2332
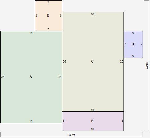
Parcel Sketches
Residential Card 1
A
MAIN
384 square feet
B
EFP ENCL FRAME PORCH
56 square feet
C
UNFIN BSMT BASEMENT UNFINISHED 1S FR ONE STORY FRAME
416 square feet
D
EFP ENCL FRAME PORCH
35 square feet
E
OFP OPEN FRAME PORCH
80 square feet
Parcel Images
Please note:
this tab is for informational purposes only and may not show all delinquencies, see the Taxes tab for more accurate delinquent taxes due.