Elected Officials
Courts
Departments
Initiatives
Open Government
About
Login / Register
Home
/
Property & Tax Records
/
Property Records
/
Property & Tax Search
/
Parcel Profile
/
Print View
Search for Another Parcel
Parcel Profile
Historical Card
Sketches
Photos
Tax Map
Taxes
Print View
Print This Page
Address: 49 CHESTNUT ST
Parcel: 05032162000300
Parcel Profile
Address
49 | CHESTNUT | ST
Street Status
PAVED | SIDEWALK
School District
CORRY AREA SCHOOL
Acreage
0.2388
Classification
R
Land Use Code
SINGLE FAMILY
Legal Description
49 CHESTNUT ST TR 52 80 X 146.5
Square Feet
1344
Topo
LEVEL
Utility
ALL PUBLIC
Zoning
Please contact your municipal zoning officer
Deed Book
1338
Deed Page
0598
2026 Tax Values
Land Value / Taxable
6,700 / 6,700.00
Building Value / Taxable
54,100 / 54,100.00
Total Value / Taxable
60,800 / 60,800.00
Clean & Green
Inactive
Homestead Status
Active
Farmstead Status
Inactive
Lerta Amount
0
Lerta Expiration Year
0
Residential Data
Card 1
Style
RANCH
Basement
PART
Year Built
1910
Exterior Wall
ALUMINUM/VINYL
Total Living Area
1344
Full Baths
1
Half Baths
0
Fuel Type
GAS
Heating
CENTRAL
Heating System
FORCED AIR
Stories
1.0
Total Bedrooms
2
Total Family Rooms
0
Total Rooms
6
Fireplaces
1
Other Buildings & Yards
No OBY Data Found
Sales History
Sale Date
Type
Price
Book / Page
Other Info
6/21/2006
LAND & BUILDING
65000
1338 / 0598
DEED
12/6/1985
0
1610 / 0583
5/14/1969
0
1002 / 0153
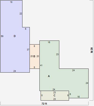
Parcel Sketches
Residential Card 1
A
MAIN
1184 square feet
B
1S FR ONE STORY FRAME
160 square feet
C
OFP OPEN FRAME PORCH
184 square feet
D
FR GR FRAME GARAGE
1284 square feet
Parcel Images
Please note:
this tab is for informational purposes only and may not show all delinquencies, see the Taxes tab for more accurate delinquent taxes due.