Elected Officials
Courts
Departments
Initiatives
Open Government
About
Login / Register
Home
/
Property & Tax Records
/
Property Records
/
Property & Tax Search
/
Parcel Profile
/
Print View
Search for Another Parcel
Parcel Profile
Historical Card
Sketches
Photos
Tax Map
Taxes
Print View
Print This Page
Address: 25 7TH ST
Parcel: 05032164000200
Parcel Profile
Address
25 | 7TH | ST
Street Status
PAVED | SIDEWALK
School District
CORRY AREA SCHOOL
Acreage
0.2264
Classification
R
Land Use Code
SINGLE FAMILY
Legal Description
25 7TH ST 83 X 381 IRR
Square Feet
1895
Topo
LEVEL
Utility
ALL PUBLIC
Zoning
Please contact your municipal zoning officer
Deed Book
2010
Deed Page
020496
2026 Tax Values
Land Value / Taxable
6,600 / 6,600.00
Building Value / Taxable
79,360 / 79,360.00
Total Value / Taxable
85,960 / 85,960.00
Clean & Green
Inactive
Homestead Status
Active
Farmstead Status
Inactive
Lerta Amount
0
Lerta Expiration Year
0
Residential Data
Card 1
Style
OLD STYLE
Basement
PART
Year Built
1900
Exterior Wall
ALUMINUM/VINYL
Total Living Area
1895
Full Baths
1
Half Baths
1
Fuel Type
GAS
Heating
CENTRAL
Heating System
FORCED AIR
Stories
2.0
Total Bedrooms
3
Total Family Rooms
0
Total Rooms
6
Fireplaces
0
Other Buildings & Yards
No OBY Data Found
Sales History
Sale Date
Type
Price
Book / Page
Other Info
8/20/2010
LAND & BUILDING
123000
2010 / 020496
SPECIAL WARRANTY DEED
12/14/1964
0
0908 / 0198
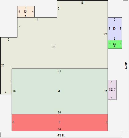
Parcel Sketches
Residential Card 1
A
MAIN
544 square feet
B
EFP ENCL FRAME PORCH
24 square feet
C
UNFIN BSMT BASEMENT UNFINISHED 1S FR ONE STORY FRAME
786 square feet
D
EFP ENCL FRAME PORCH
40 square feet
E
FRBAY FRAME BAY
21 square feet
F
OFP OPEN FRAME PORCH
204 square feet
G
MA STOOP/TERR MAS STOOP
15 square feet
Parcel Images
Please note:
this tab is for informational purposes only and may not show all delinquencies, see the Taxes tab for more accurate delinquent taxes due.