Elected Officials
Courts
Departments
Initiatives
Open Government
About
Login / Register
Home
/
Property & Tax Records
/
Property Records
/
Property & Tax Search
/
Parcel Profile
/
Print View
Search for Another Parcel
Parcel Profile
Historical Card
Sketches
Photos
Tax Map
Taxes
Print View
Print This Page
Address: 614 CONCORD ST
Parcel: 05032164000900
Parcel Profile
Address
614 | CONCORD | ST
Street Status
PAVED | SIDEWALK
School District
CORRY AREA SCHOOL
Acreage
0.3466
Classification
R
Land Use Code
SINGLE FAMILY
Legal Description
614 CONCORD ST TR 52 49.5 X 305
Square Feet
1050
Topo
LEVEL
Utility
ALL PUBLIC
Zoning
Please contact your municipal zoning officer
Deed Book
1020
Deed Page
1272
2026 Tax Values
Land Value / Taxable
7,200 / 7,200.00
Building Value / Taxable
34,800 / 34,800.00
Total Value / Taxable
42,000 / 42,000.00
Clean & Green
Inactive
Homestead Status
Active
Farmstead Status
Inactive
Lerta Amount
0
Lerta Expiration Year
0
Residential Data
Card 1
Style
CONVENTIONAL
Basement
FULL
Year Built
1890
Exterior Wall
ALUMINUM/VINYL
Total Living Area
1050
Full Baths
1
Half Baths
1
Fuel Type
GAS
Heating
CENTRAL
Heating System
FORCED AIR
Stories
1.5
Total Bedrooms
3
Total Family Rooms
0
Total Rooms
5
Fireplaces
0
Other Buildings & Yards
No OBY Data Found
Sales History
Sale Date
Type
Price
Book / Page
Other Info
6/6/2003
LAND & BUILDING
32000
1020 / 1272
FIDUCIARY DEED
4/18/1942
0
0405 / 0704
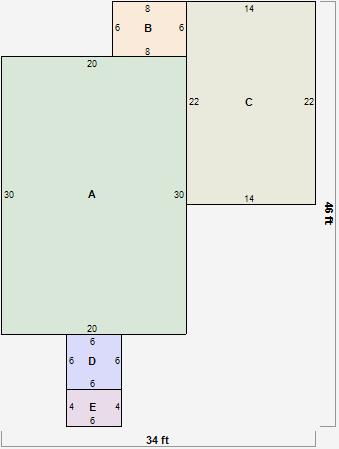
Parcel Sketches
Residential Card 1
A
MAIN
600 square feet
B
EFP ENCL FRAME PORCH
48 square feet
C
CARPT CARPORT
308 square feet
D
EFP ENCL FRAME PORCH
36 square feet
E
MA STOOP/TERR MAS STOOP
24 square feet
Parcel Images
Please note:
this tab is for informational purposes only and may not show all delinquencies, see the Taxes tab for more accurate delinquent taxes due.