Elected Officials
Courts
Departments
Initiatives
Open Government
About
Login / Register
Home
/
Property & Tax Records
/
Property Records
/
Property & Tax Search
/
Parcel Profile
/
Print View
Search for Another Parcel
Parcel Profile
Historical Card
Sketches
Photos
Tax Map
Taxes
Print View
Print This Page
Address: 412 S CENTER ST
Parcel: 05032165001400
Parcel Profile
Address
412 | S | CENTER | ST
Street Status
PAVED | SIDEWALK
School District
CORRY AREA SCHOOL
Acreage
0.4091
Classification
R
Land Use Code
THREE FAMILY
Legal Description
412 S CENTER ST 132 X 135
Square Feet
3093
Topo
LEVEL
Utility
ALL PUBLIC
Zoning
Please contact your municipal zoning officer
Deed Book
2021
Deed Page
014254
2026 Tax Values
Land Value / Taxable
7,500 / 7,500.00
Building Value / Taxable
66,200 / 66,200.00
Total Value / Taxable
73,700 / 73,700.00
Clean & Green
Inactive
Homestead Status
Inactive
Farmstead Status
Inactive
Lerta Amount
0
Lerta Expiration Year
0
Residential Data
Card 1
Style
OLD STYLE
Basement
FULL
Year Built
1910
Exterior Wall
FRAME
Total Living Area
3093
Full Baths
3
Half Baths
0
Fuel Type
GAS
Heating
CENTRAL
Heating System
FORCED AIR
Stories
2.0
Total Bedrooms
5
Total Family Rooms
0
Total Rooms
11
Fireplaces
0
Other Buildings & Yards
No OBY Data Found
Sales History
Sale Date
Type
Price
Book / Page
Other Info
6/4/2021
LAND & BUILDING
77200
2021 / 014254
SPECIAL WARRANTY DEED
5/24/2021
LAND & BUILDING
0
2021 / 012880
SPECIAL WARRANTY DEED
10/16/1974
0
1130 / 0412
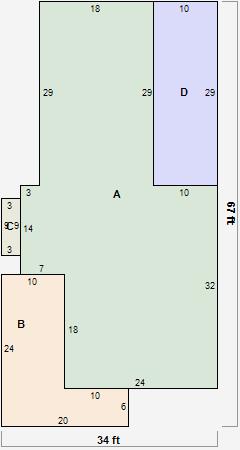
Parcel Sketches
Residential Card 1
A
MAIN
1388 square feet
B
OFP OPEN FRAME PORCH
300 square feet
C
FRBAY FRAME BAY
27 square feet
D
1S FR ONE STORY FRAME
290 square feet
Parcel Images
Please note:
this tab is for informational purposes only and may not show all delinquencies, see the Taxes tab for more accurate delinquent taxes due.