Elected Officials
Courts
Departments
Initiatives
Open Government
About
Login / Register
Home
/
Property & Tax Records
/
Property Records
/
Property & Tax Search
/
Parcel Profile
/
Print View
Search for Another Parcel
Parcel Profile
Historical Card
Sketches
Photos
Tax Map
Taxes
Print View
Print This Page
Address: 324 S CENTER ST
Parcel: 05032166001800
Parcel Profile
Address
324 | S | CENTER | ST
Street Status
PAVED | SIDEWALK
School District
CORRY AREA SCHOOL
Acreage
0.0795
Classification
R
Land Use Code
SINGLE FAMILY
Legal Description
324 S CENTER ST 45 X 79.83
Square Feet
1400
Topo
LEVEL
Utility
ALL PUBLIC
Zoning
Please contact your municipal zoning officer
Deed Book
2019
Deed Page
004244
2026 Tax Values
Land Value / Taxable
5,400 / 5,400.00
Building Value / Taxable
42,850 / 42,850.00
Total Value / Taxable
48,250 / 48,250.00
Clean & Green
Inactive
Homestead Status
Inactive
Farmstead Status
Inactive
Lerta Amount
0
Lerta Expiration Year
0
Residential Data
Card 1
Style
OLD STYLE
Basement
FULL
Year Built
1900
Exterior Wall
ALUMINUM/VINYL
Total Living Area
1400
Full Baths
1
Half Baths
0
Fuel Type
GAS
Heating
CENTRAL
Heating System
FORCED AIR
Stories
2.0
Total Bedrooms
3
Total Family Rooms
0
Total Rooms
6
Fireplaces
0
Other Buildings & Yards
No OBY Data Found
Sales History
Sale Date
Type
Price
Book / Page
Other Info
3/12/2019
LAND & BUILDING
40500
2019 / 004244
SPECIAL WARRANTY DEED
12/28/2018
LAND & BUILDING
0
2018 / 026660
DEED
11/9/2018
LAND & BUILDING
1318
2018 / 023328
SHERIFF'S DED
8/20/2015
LAND & BUILDING
48000
2015 / 018148
WARRANTY/SURVIVORSHIP DEED
9/25/2003
LAND & BUILDING
54000
1068 / 1042
WARRANTY/SURVIVORSHIP DEED
5/20/1997
0
0499 / 0262
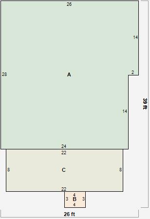
Parcel Sketches
Residential Card 1
A
MAIN
700 square feet
B
MA STOOP/TERR MAS STOOP
12 square feet
C
EFP ENCL FRAME PORCH
176 square feet
Parcel Images
Please note:
this tab is for informational purposes only and may not show all delinquencies, see the Taxes tab for more accurate delinquent taxes due.