Elected Officials
Courts
Departments
Initiatives
Open Government
About
Login / Register
Home
/
Property & Tax Records
/
Property Records
/
Property & Tax Search
/
Parcel Profile
/
Print View
Search for Another Parcel
Parcel Profile
Historical Card
Sketches
Photos
Tax Map
Taxes
Print View
Print This Page
Address: 320 S CENTER ST
Parcel: 05032166001900
Parcel Profile
Address
320 | S | CENTER | ST
Street Status
PAVED | SIDEWALK
School District
CORRY AREA SCHOOL
Acreage
0.2210
Classification
R
Land Use Code
SINGLE FAMILY
Legal Description
320 S CENTER ST 46.5 X 207 IRR
Square Feet
2020
Topo
LEVEL
Utility
ALL PUBLIC
Zoning
Please contact your municipal zoning officer
Deed Book
2015
Deed Page
009096
2026 Tax Values
Land Value / Taxable
6,600 / 6,600.00
Building Value / Taxable
41,300 / 41,300.00
Total Value / Taxable
47,900 / 47,900.00
Clean & Green
Inactive
Homestead Status
Active
Farmstead Status
Inactive
Lerta Amount
0
Lerta Expiration Year
0
Residential Data
Card 1
Style
OLD STYLE
Basement
PART
Year Built
1910
Exterior Wall
ALUMINUM/VINYL
Total Living Area
2020
Full Baths
2
Half Baths
0
Fuel Type
GAS
Heating
NON CENTRAL
Heating System
FORCED AIR
Stories
2.0
Total Bedrooms
2
Total Family Rooms
0
Total Rooms
7
Fireplaces
0
Other Buildings & Yards
No OBY Data Found
Sales History
Sale Date
Type
Price
Book / Page
Other Info
5/8/2015
LAND & BUILDING
35000
2015 / 009096
SPECIAL WARRANTY DEED
8/27/2004
LAND & BUILDING
0
1168 / 0189
DEED
7/13/2004
LAND & BUILDING
0
1153 / 2347
QUIT CLAIM DEED
9/6/1989
0
0098 / 0089
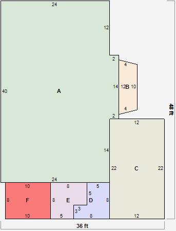
Parcel Sketches
Residential Card 1
A
MAIN
988 square feet
B
FRBAY FRAME BAY
44 square feet
C
CARPT CARPORT
264 square feet
D
OFP OPEN FRAME PORCH
49 square feet
E
EFP ENCL FRAME PORCH
55 square feet
F
EFP ENCL FRAME PORCH
80 square feet
Parcel Images
Please note:
this tab is for informational purposes only and may not show all delinquencies, see the Taxes tab for more accurate delinquent taxes due.