Elected Officials
Courts
Departments
Initiatives
Open Government
About
Login / Register
Home
/
Property & Tax Records
/
Property Records
/
Property & Tax Search
/
Parcel Profile
/
Print View
Search for Another Parcel
Parcel Profile
Historical Card
Sketches
Photos
Tax Map
Taxes
Print View
Print This Page
Address: 694 E COLUMBUS AVE
Parcel: 06006014000700
Parcel Profile
Address
694 | E | COLUMBUS | AVE
Street Status
PAVED
School District
CORRY AREA SCHOOL
Acreage
1.4058
Classification
R
Land Use Code
DWELLING W/ COMMERCIAL USE PRIMARY RES
Legal Description
694 E COLUMBUS AVE 1.4058 AC
Square Feet
1835
Topo
LEVEL
Utility
ALL PUBLIC
Zoning
Please contact your municipal zoning officer
Deed Book
2024
Deed Page
017177
2026 Tax Values
Land Value / Taxable
20,900 / 20,900.00
Building Value / Taxable
73,400 / 73,400.00
Total Value / Taxable
94,300 / 94,300.00
Clean & Green
Inactive
Homestead Status
Inactive
Farmstead Status
Inactive
Lerta Amount
0
Lerta Expiration Year
0
Residential Data
Card 1
Style
OLD STYLE
Basement
FULL
Year Built
1907
Exterior Wall
ALUMINUM/VINYL
Total Living Area
1835
Full Baths
1
Half Baths
0
Fuel Type
GAS
Heating
CENTRAL
Heating System
FORCED AIR
Stories
1.5
Total Bedrooms
5
Total Family Rooms
0
Total Rooms
9
Fireplaces
0
Other Buildings & Yards
Description
Built
Width
Length
Area
MASONRY SHED
1960
44
66
2904
FOUR SIDE CLOSED MTL POLE BLDG
1977
24
60
1440
BRICK OR STONE DETACHED GAR.
1960
26
42
1092
MASONRY SHED
1960
0
0
378
CANOPY
1960
0
0
42
Sales History
Sale Date
Type
Price
Book / Page
Other Info
10/21/2024
LAND & BUILDING
275000
2024 / 017177
SPECIAL WARRANTY DEED
1/23/2006
LAND & BUILDING
132500
1301 / 2000
WARRANTY/SURVIVORSHIP DEED
6/17/1982
4400
0928 / 0022
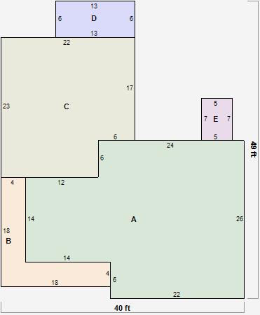
Parcel Sketches
Residential Card 1
A
MAIN
780 square feet
B
OFP OPEN FRAME PORCH
128 square feet
C
UNFIN BSMT BASEMENT UNFINISHED 1S FR ONE STORY FRAME
470 square feet
D
EFP ENCL FRAME PORCH
78 square feet
E
EMP ENCL MASONRY PORCH
35 square feet
Parcel Images
Please note:
this tab is for informational purposes only and may not show all delinquencies, see the Taxes tab for more accurate delinquent taxes due.