Elected Officials
Courts
Departments
Initiatives
Open Government
About
Login / Register
Home
/
Property & Tax Records
/
Property Records
/
Property & Tax Search
/
Parcel Profile
/
Print View
Search for Another Parcel
Parcel Profile
Historical Card
Sketches
Photos
Tax Map
Taxes
Print View
Print This Page
Address: 240 E COLUMBUS AVE
Parcel: 06009015000400
Parcel Profile
Address
240 | E | COLUMBUS | AVE
Street Status
PAVED
School District
CORRY AREA SCHOOL
Acreage
0.3673
Classification
R
Land Use Code
SINGLE FAMILY
Legal Description
240 E COLUMBUS AVE 100X160
Square Feet
3076
Topo
ROLLING
Utility
ALL PUBLIC
Zoning
Please contact your municipal zoning officer
Deed Book
0107
Deed Page
1333
2026 Tax Values
Land Value / Taxable
14,000 / 14,000.00
Building Value / Taxable
119,500 / 119,500.00
Total Value / Taxable
133,500 / 133,500.00
Clean & Green
Inactive
Homestead Status
Active
Farmstead Status
Inactive
Lerta Amount
0
Lerta Expiration Year
0
Residential Data
Card 1
Style
OLD STYLE
Basement
PART
Year Built
1890
Exterior Wall
FRAME
Total Living Area
3076
Full Baths
1
Half Baths
1
Fuel Type
GAS
Heating
CENTRAL
Heating System
FORCED AIR
Stories
2.0
Total Bedrooms
5
Total Family Rooms
0
Total Rooms
11
Fireplaces
1
Other Buildings & Yards
Description
Built
Width
Length
Area
FRAME OR CB DETACHED GARAGE
1993
30
36
1080
Sales History
Sale Date
Type
Price
Book / Page
Other Info
12/8/1989
0
0107 / 1333
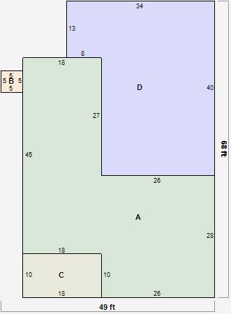
Parcel Sketches
Residential Card 1
A
MAIN
1538 square feet
B
OFP OPEN FRAME PORCH
25 square feet
C
OFP OPEN FRAME PORCH
180 square feet
D
WDDCK WOOD DECKS
1144 square feet
Parcel Images
Please note:
this tab is for informational purposes only and may not show all delinquencies, see the Taxes tab for more accurate delinquent taxes due.