Elected Officials
Courts
Departments
Initiatives
Open Government
About
Login / Register
Home
/
Property & Tax Records
/
Property Records
/
Property & Tax Search
/
Parcel Profile
/
Print View
Search for Another Parcel
Parcel Profile
Historical Card
Sketches
Photos
Tax Map
Taxes
Print View
Print This Page
Address: 29 RAYMOND AVE
Parcel: 06010020001400
Parcel Profile
Address
29 | RAYMOND | AVE
Street Status
PAVED
School District
CORRY AREA SCHOOL
Acreage
0.1170
Classification
R
Land Use Code
SINGLE FAMILY
Legal Description
29 RAYMOND AVE 52 X 98.19
Square Feet
1144
Topo
ROLLING
Utility
ALL PUBLIC
Zoning
Please contact your municipal zoning officer
Deed Book
2019
Deed Page
020975
2025 Tax Values
Land Value / Taxable
11,500 / 11,500.00
Building Value / Taxable
50,710 / 50,710.00
Total Value / Taxable
62,210 / 62,210.00
Clean & Green
Inactive
Homestead Status
Inactive
Farmstead Status
Inactive
Lerta Amount
0
Lerta Expiration Year
0
Residential Data
Card 1
Style
OLD STYLE
Basement
FULL
Year Built
1936
Exterior Wall
FRAME
Total Living Area
1144
Full Baths
1
Half Baths
0
Fuel Type
GAS
Heating
CENTRAL
Heating System
HOT WATER
Stories
2.0
Total Bedrooms
2
Total Family Rooms
0
Total Rooms
5
Fireplaces
0
Other Buildings & Yards
Description
Built
Width
Length
Area
FRAME OR CB DETACHED GARAGE
1936
12
19
228
Sales History
Sale Date
Type
Price
Book / Page
Other Info
10/14/2019
LAND & BUILDING
65000
2019 / 020975
SPECIAL WARRANTY DEED
9/14/2017
LAND & BUILDING
60000
2017 / 019966
SPECIAL WARRANTY DEED
8/26/2005
LAND & BUILDING
72500
1264 / 0619
SPECIAL WARRANTY DEED
12/4/2001
LAND & BUILDING
58500
831 / 569
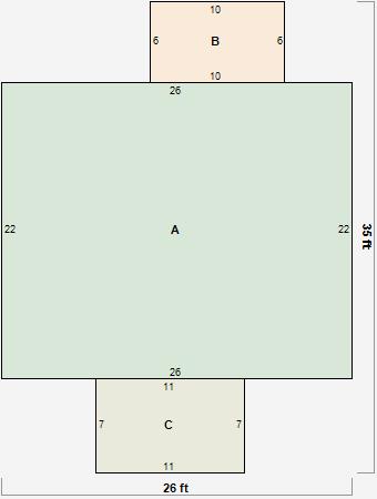
Parcel Sketches
Residential Card 1
A
MAIN
572 square feet
B
EFP ENCL FRAME PORCH
60 square feet
C
EFP ENCL FRAME PORCH
77 square feet
Parcel Images