Elected Officials
Courts
Departments
Initiatives
Open Government
About
Login / Register
Home
/
Property & Tax Records
/
Property Records
/
Property & Tax Search
/
Parcel Profile
/
Print View
Search for Another Parcel
Parcel Profile
Historical Card
Sketches
Photos
Tax Map
Taxes
Print View
Print This Page
Address: 476 E WAYNE ST
Parcel: 06015015003600
Parcel Profile
Address
476 | E | WAYNE | ST
Street Status
PAVED | SIDEWALK
School District
CORRY AREA SCHOOL
Acreage
5.2300
Classification
R
Land Use Code
SINGLE FAMILY
Legal Description
476 E WAYNE ST 5.23 AC
Square Feet
2009
Topo
LEVEL
Utility
ALL PUBLIC
Zoning
Please contact your municipal zoning officer
Deed Book
2020
Deed Page
013631
2025 Tax Values
Land Value / Taxable
28,600 / 28,600.00
Building Value / Taxable
54,030 / 54,030.00
Total Value / Taxable
82,630 / 82,630.00
Clean & Green
Inactive
Homestead Status
Active
Farmstead Status
Inactive
Lerta Amount
0
Lerta Expiration Year
0
Residential Data
Card 1
Style
OLD STYLE
Basement
PART
Year Built
1898
Exterior Wall
FRAME
Total Living Area
2009
Full Baths
1
Half Baths
0
Fuel Type
GAS
Heating
CENTRAL
Heating System
FORCED AIR
Stories
2.0
Total Bedrooms
2
Total Family Rooms
0
Total Rooms
7
Fireplaces
0
Other Buildings & Yards
Description
Built
Width
Length
Area
FLAT BARN
1898
20
30
600
CANOPY RF-ECONOMY
1980
20
18
360
Sales History
Sale Date
Type
Price
Book / Page
Other Info
7/21/2020
LAND & BUILDING
102000
2020 / 013631
SPECIAL WARRANTY DEED
4/4/2012
LAND & BUILDING
85000
2012 / 008342
WARRANTY/SURVIVORSHIP DEED
5/24/2002
LAND & BUILDING
73900
883 / 931
DEED
2/19/1999
LAND & BUILDING
68900
618 / 2078
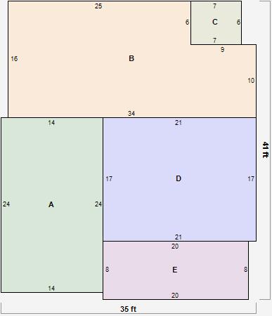
Parcel Sketches
Residential Card 1
A
MAIN
336 square feet
B
1S FR ONE STORY FRAME 1S FR ONE STORY FRAME
490 square feet
C
OFP OPEN FRAME PORCH
42 square feet
D
UNFIN BSMT BASEMENT UNFINISHED 1S FR ONE STORY FRAME
357 square feet
E
EFP ENCL FRAME PORCH
160 square feet
Parcel Images