Elected Officials
Courts
Departments
Initiatives
Open Government
About
Login / Register
Home
/
Property & Tax Records
/
Property Records
/
Property & Tax Search
/
Parcel Profile
/
Print View
Search for Another Parcel
Parcel Profile
Historical Card
Sketches
Photos
Tax Map
Taxes
Print View
Print This Page
Address: 60 RAYMOND AVE
Parcel: 06015021000800
Parcel Profile
Address
60 | RAYMOND | AVE
Street Status
PAVED | SIDEWALK
School District
CORRY AREA SCHOOL
Acreage
0.1791
Classification
R
Land Use Code
SINGLE FAMILY
Legal Description
60 RAYMOND AVE 52X150
Square Feet
1365
Topo
LEVEL
Utility
ALL PUBLIC
Zoning
Please contact your municipal zoning officer
Deed Book
2014
Deed Page
000314
2026 Tax Values
Land Value / Taxable
12,100 / 12,100.00
Building Value / Taxable
43,480 / 43,480.00
Total Value / Taxable
55,580 / 55,580.00
Clean & Green
Inactive
Homestead Status
Inactive
Farmstead Status
Inactive
Lerta Amount
0
Lerta Expiration Year
0
Residential Data
Card 1
Style
CAPE
Basement
FULL
Year Built
1900
Exterior Wall
ALUMINUM/VINYL
Total Living Area
1365
Full Baths
1
Half Baths
1
Fuel Type
GAS
Heating
CENTRAL A/C
Heating System
FORCED AIR
Stories
1.5
Total Bedrooms
2
Total Family Rooms
0
Total Rooms
5
Fireplaces
0
Other Buildings & Yards
Description
Built
Width
Length
Area
FRAME OR CB DETACHED GARAGE
1930
12
24
288
Sales History
Sale Date
Type
Price
Book / Page
Other Info
1/6/2014
LAND & BUILDING
49900
2014 / 000314
WARRANTY/SURVIVORSHIP DEED
12/19/1983
0
1519 / 0503
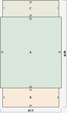
Parcel Sketches
Residential Card 1
A
MAIN
780 square feet
B
EFP ENCL FRAME PORCH
192 square feet
C
EFP ENCL FRAME PORCH
168 square feet
Parcel Images
Please note:
this tab is for informational purposes only and may not show all delinquencies, see the Taxes tab for more accurate delinquent taxes due.