Elected Officials
Courts
Departments
Initiatives
Open Government
About
Login / Register
Home
/
Property & Tax Records
/
Property Records
/
Property & Tax Search
/
Parcel Profile
/
Print View
Search for Another Parcel
Parcel Profile
Historical Card
Sketches
Photos
Tax Map
Taxes
Print View
Print This Page
Address: 930 N CENTER ST
Parcel: 06015021002900
Parcel Profile
Address
930 | N | CENTER | ST
Street Status
PAVED
School District
CORRY AREA SCHOOL
Acreage
0.2323
Classification
R
Land Use Code
TWO FAMILY
Legal Description
930 N CENTER ST 67 X 135
Square Feet
1858
Topo
LEVEL
Utility
ALL PUBLIC
Zoning
Please contact your municipal zoning officer
Deed Book
2020
Deed Page
027400
2026 Tax Values
Land Value / Taxable
12,700 / 12,700.00
Building Value / Taxable
39,810 / 39,810.00
Total Value / Taxable
52,510 / 52,510.00
Clean & Green
Inactive
Homestead Status
Active
Farmstead Status
Inactive
Lerta Amount
0
Lerta Expiration Year
0
Residential Data
Card 1
Style
OLD STYLE
Basement
CRAWL
Year Built
1920
Exterior Wall
ALUMINUM/VINYL
Total Living Area
1858
Full Baths
2
Half Baths
0
Fuel Type
GAS
Heating
CENTRAL
Heating System
HOT WATER
Stories
2.0
Total Bedrooms
2
Total Family Rooms
0
Total Rooms
8
Fireplaces
0
Other Buildings & Yards
Description
Built
Width
Length
Area
FRAME OR CB DETACHED GARAGE
1920
12
20
240
Sales History
Sale Date
Type
Price
Book / Page
Other Info
12/18/2020
LAND & BUILDING
0
2020 / 027400
SPECIAL WARRANTY DEED
1/5/2015
LAND & BUILDING
0
2015 / 000146
QUIT CLAIM DEED
7/13/2005
LAND & BUILDING
60000
1250 / 2331
SPECIAL WARRANTY DEED
12/29/1992
0
0247 / 0046
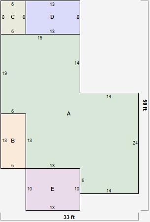
Parcel Sketches
Residential Card 1
A
MAIN
866 square feet
B
1S FR ONE STORY FRAME
78 square feet
C
UNFIN BSMT BASEMENT UNFINISHED 1S FR ONE STORY FRAME
48 square feet
D
UNFIN BSMT BASEMENT UNFINISHED EFP ENCL FRAME PORCH
104 square feet
E
EFP ENCL FRAME PORCH
130 square feet
Parcel Images
Please note:
this tab is for informational purposes only and may not show all delinquencies, see the Taxes tab for more accurate delinquent taxes due.