Elected Officials
Courts
Departments
Initiatives
Open Government
About
Login / Register
Home
/
Property & Tax Records
/
Property Records
/
Property & Tax Search
/
Parcel Profile
/
Print View
Search for Another Parcel
Parcel Profile
Historical Card
Sketches
Photos
Tax Map
Taxes
Print View
Print This Page
Address: 541 E WAYNE ST
Parcel: 06015022001100
Parcel Profile
Address
541 | E | WAYNE | ST
Street Status
PAVED
School District
CORRY AREA SCHOOL
Acreage
0.7240
Classification
R
Land Use Code
SINGLE FAMILY
Legal Description
541 E WAYNE ST 75X420.5
Square Feet
1083
Topo
LEVEL
Utility
ALL PUBLIC
Zoning
Please contact your municipal zoning officer
Deed Book
2018
Deed Page
017424
2026 Tax Values
Land Value / Taxable
17,600 / 17,600.00
Building Value / Taxable
30,490 / 30,490.00
Total Value / Taxable
48,090 / 48,090.00
Clean & Green
Inactive
Homestead Status
Inactive
Farmstead Status
Inactive
Lerta Amount
0
Lerta Expiration Year
0
Residential Data
Card 1
Style
BUNGALOW
Basement
FULL
Year Built
1930
Exterior Wall
FRAME
Total Living Area
1083
Full Baths
1
Half Baths
0
Fuel Type
GAS
Heating
CENTRAL
Heating System
FORCED AIR
Stories
1.0
Total Bedrooms
2
Total Family Rooms
0
Total Rooms
5
Fireplaces
0
Other Buildings & Yards
Description
Built
Width
Length
Area
FRAME OR CB DETACHED GARAGE
1930
12
20
240
Sales History
Sale Date
Type
Price
Book / Page
Other Info
8/24/2018
LAND & BUILDING
0
2018 / 017424
SPECIAL WARRANTY DEED
10/18/1999
LAND & BUILDING
40000
668 / 1298
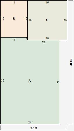
Parcel Sketches
Residential Card 1
A
MAIN
827 square feet
B
OFP OPEN FRAME PORCH
165 square feet
C
1S FR ONE STORY FRAME
256 square feet
Parcel Images
Please note:
this tab is for informational purposes only and may not show all delinquencies, see the Taxes tab for more accurate delinquent taxes due.