Elected Officials
Courts
Departments
Initiatives
Open Government
About
Login / Register
Home
/
Property & Tax Records
/
Property Records
/
Property & Tax Search
/
Parcel Profile
/
Print View
Search for Another Parcel
Parcel Profile
Historical Card
Sketches
Photos
Tax Map
Taxes
Print View
Print This Page
Address: 521 E WAYNE ST
Parcel: 06015022001400
Parcel Profile
Address
521 | E | WAYNE | ST
Street Status
PAVED
School District
CORRY AREA SCHOOL
Acreage
0.2980
Classification
R
Land Use Code
SINGLE FAMILY
Legal Description
521 E WAYNE ST 60X222.73 IRR
Square Feet
1156
Topo
LEVEL
Utility
ALL PUBLIC
Zoning
Please contact your municipal zoning officer
Deed Book
2022
Deed Page
014377
2026 Tax Values
Land Value / Taxable
13,300 / 13,300.00
Building Value / Taxable
28,200 / 28,200.00
Total Value / Taxable
41,500 / 41,500.00
Clean & Green
Inactive
Homestead Status
Inactive
Farmstead Status
Inactive
Lerta Amount
0
Lerta Expiration Year
0
Residential Data
Card 1
Style
BUNGALOW
Basement
PART
Year Built
1910
Exterior Wall
COMPOSITION
Total Living Area
1156
Full Baths
1
Half Baths
0
Fuel Type
GAS
Heating
CENTRAL
Heating System
HOT WATER
Stories
1.0
Total Bedrooms
2
Total Family Rooms
0
Total Rooms
5
Fireplaces
0
Other Buildings & Yards
Description
Built
Width
Length
Area
FRAME OR CB DETACHED GARAGE
1910
20
28
560
Sales History
Sale Date
Type
Price
Book / Page
Other Info
7/5/2022
LAND & BUILDING
41000
2022 / 014377
DEED
5/24/2010
LAND & BUILDING
38000
2010 / 011709
FIDUCIARY DEED
7/1/1974
0
1123 / 0220
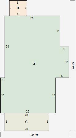
Parcel Sketches
Residential Card 1
A
MAIN
1156 square feet
B
EFP ENCL FRAME PORCH
56 square feet
C
EFP ENCL FRAME PORCH
160 square feet
Parcel Images
Please note:
this tab is for informational purposes only and may not show all delinquencies, see the Taxes tab for more accurate delinquent taxes due.