Elected Officials
Courts
Departments
Initiatives
Open Government
About
Login / Register
Home
/
Property & Tax Records
/
Property Records
/
Property & Tax Search
/
Parcel Profile
/
Print View
Search for Another Parcel
Parcel Profile
Historical Card
Sketches
Photos
Tax Map
Taxes
Print View
Print This Page
Address: 143 E IRVING ST
Parcel: 06015022001700
Parcel Profile
Address
143 | E | IRVING | ST
Street Status
PAVED
School District
CORRY AREA SCHOOL
Acreage
0.2048
Classification
R
Land Use Code
SINGLE FAMILY
Legal Description
143 E IRVING ST 74.5X168.3 IRR
Square Feet
1832
Topo
LEVEL
Utility
ALL PUBLIC
Zoning
Please contact your municipal zoning officer
Deed Book
1101
Deed Page
0507
2026 Tax Values
Land Value / Taxable
12,400 / 12,400.00
Building Value / Taxable
11,780 / 11,780.00
Total Value / Taxable
24,180 / 24,180.00
Clean & Green
Inactive
Homestead Status
Active
Farmstead Status
Inactive
Lerta Amount
0
Lerta Expiration Year
0
Residential Data
Card 1
Style
OLD STYLE
Basement
NONE
Year Built
1900
Exterior Wall
COMPOSITION
Total Living Area
1832
Full Baths
1
Half Baths
0
Fuel Type
GAS
Heating
CENTRAL
Heating System
FORCED AIR
Stories
2.0
Total Bedrooms
4
Total Family Rooms
0
Total Rooms
9
Fireplaces
0
Other Buildings & Yards
No OBY Data Found
Sales History
Sale Date
Type
Price
Book / Page
Other Info
7/20/1973
0
1101 / 0507
Parcel Sketches
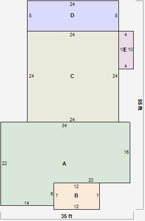
Residential Card 1
A
MAIN
628 square feet
B
OFP OPEN FRAME PORCH
84 square feet
C
1S FR ONE STORY FRAME AT UN ATTIC-UNFINISHED
576 square feet
D
WDDCK WOOD DECKS
192 square feet
E
OFP OPEN FRAME PORCH
40 square feet
Parcel Images