Elected Officials
Courts
Departments
Initiatives
Open Government
About
Login / Register
Home
/
Property & Tax Records
/
Property Records
/
Property & Tax Search
/
Parcel Profile
/
Print View
Search for Another Parcel
Parcel Profile
Historical Card
Sketches
Photos
Tax Map
Taxes
Print View
Print This Page
Address: 608 N CENTER ST
Parcel: 06015024001900
Parcel Profile
Address
608 | N | CENTER | ST
Street Status
PAVED
School District
CORRY AREA SCHOOL
Acreage
0.1667
Classification
R
Land Use Code
SINGLE FAMILY
Legal Description
608 N CENTER ST 55X132
Square Feet
2256
Topo
LEVEL
Utility
ALL PUBLIC
Zoning
Please contact your municipal zoning officer
Deed Book
2025
Deed Page
005767
2026 Tax Values
Land Value / Taxable
12,000 / 12,000.00
Building Value / Taxable
65,360 / 65,360.00
Total Value / Taxable
77,360 / 77,360.00
Clean & Green
Inactive
Homestead Status
Inactive
Farmstead Status
Inactive
Lerta Amount
0
Lerta Expiration Year
0
Residential Data
Card 1
Style
OLD STYLE
Basement
FULL
Year Built
1900
Exterior Wall
FRAME
Total Living Area
2256
Full Baths
1
Half Baths
2
Fuel Type
GAS
Heating
CENTRAL
Heating System
FORCED AIR
Stories
2.0
Total Bedrooms
3
Total Family Rooms
0
Total Rooms
6
Fireplaces
1
Other Buildings & Yards
Description
Built
Width
Length
Area
FRAME OR CB DETACHED GARAGE
1940
20
24
480
CONCRET PATIO, DETACHED
1940
0
0
252
Sales History
Sale Date
Type
Price
Book / Page
Other Info
4/15/2025
LAND & BUILDING
141000
2025 / 005767
FIDUCIARY DEED
4/18/2023
LAND & BUILDING
131000
2023 / 005846
DEED
4/18/2023
LAND & BUILDING
0
2023 / 005845
DEED
11/17/2017
LAND & BUILDING
0
2017 / 025411
DEED
1/29/1976
0
1195 / 0175
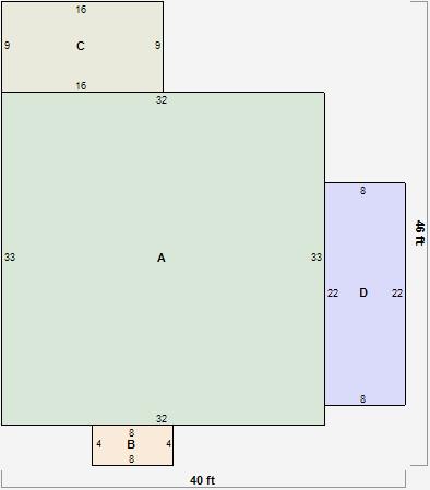
Parcel Sketches
Residential Card 1
A
MAIN
1056 square feet
B
OFP OPEN FRAME PORCH
32 square feet
C
1S FR ONE STORY FRAME
144 square feet
D
OFP OPEN FRAME PORCH
176 square feet
Parcel Images
Please note:
this tab is for informational purposes only and may not show all delinquencies, see the Taxes tab for more accurate delinquent taxes due.