Elected Officials
Courts
Departments
Initiatives
Open Government
About
Login / Register
Home
/
Property & Tax Records
/
Property Records
/
Property & Tax Search
/
Parcel Profile
/
Print View
Search for Another Parcel
Parcel Profile
Historical Card
Sketches
Photos
Tax Map
Taxes
Print View
Print This Page
Address: 136 E IRVING ST
Parcel: 06015025000400
Parcel Profile
Address
136 | E | IRVING | ST
Street Status
PAVED
School District
CORRY AREA SCHOOL
Acreage
0.2510
Classification
R
Land Use Code
SINGLE FAMILY
Legal Description
136 E IRVING ST 60X182.24
Square Feet
1246
Topo
LEVEL
Utility
ALL PUBLIC
Zoning
Please contact your municipal zoning officer
Deed Book
2022
Deed Page
021335
2026 Tax Values
Land Value / Taxable
12,900 / 12,900.00
Building Value / Taxable
45,600 / 45,600.00
Total Value / Taxable
58,500 / 58,500.00
Clean & Green
Inactive
Homestead Status
Inactive
Farmstead Status
Inactive
Lerta Amount
0
Lerta Expiration Year
0
Residential Data
Card 1
Style
OLD STYLE
Basement
FULL
Year Built
1900
Exterior Wall
ALUMINUM/VINYL
Total Living Area
1246
Full Baths
1
Half Baths
1
Fuel Type
GAS
Heating
CENTRAL
Heating System
HOT WATER
Stories
2.0
Total Bedrooms
3
Total Family Rooms
0
Total Rooms
8
Fireplaces
0
Other Buildings & Yards
Description
Built
Width
Length
Area
FRAME OR CB DETACHED GARAGE
1940
12
21
252
CONCRET PATIO, DETACHED
1940
0
0
200
Sales History
Sale Date
Type
Price
Book / Page
Other Info
9/30/2022
LAND & BUILDING
84000
2022 / 021335
SPECIAL WARRANTY DEED
11/29/2016
LAND & BUILDING
65000
2016 / 025910
DEED
10/18/2011
LAND & BUILDING
0
2011 / 024797
DEED
7/9/2002
LAND & BUILDING
0
898 / 916
DEED
11/1/1990
0
0142 / 0815
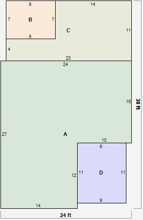
Parcel Sketches
Residential Card 1
A
MAIN
528 square feet
B
OFP OPEN FRAME PORCH
63 square feet
C
1S FR ONE STORY FRAME
190 square feet
D
OFP OPEN FRAME PORCH
99 square feet
Parcel Images
Please note:
this tab is for informational purposes only and may not show all delinquencies, see the Taxes tab for more accurate delinquent taxes due.