Elected Officials
Courts
Departments
Initiatives
Open Government
About
Login / Register
Home
/
Property & Tax Records
/
Property Records
/
Property & Tax Search
/
Parcel Profile
/
Print View
Search for Another Parcel
Parcel Profile
Historical Card
Sketches
Photos
Tax Map
Taxes
Print View
Print This Page
Address: 119 E FREDERICK ST
Parcel: 06021026000900
Parcel Profile
Address
119 | E | FREDERICK | ST
Street Status
PAVED
School District
CORRY AREA SCHOOL
Acreage
0.1067
Classification
R
Land Use Code
SINGLE FAMILY
Legal Description
119 E FREDERICK ST 50 X 92.86
Square Feet
1528
Topo
LEVEL
Utility
ALL PUBLIC
Zoning
Please contact your municipal zoning officer
Deed Book
2019
Deed Page
000910
2025 Tax Values
Land Value / Taxable
11,200 / 11,200.00
Building Value / Taxable
54,000 / 54,000.00
Total Value / Taxable
65,200 / 65,200.00
Clean & Green
Inactive
Homestead Status
Active
Farmstead Status
Inactive
Lerta Amount
0
Lerta Expiration Year
0
Residential Data
Card 1
Style
CONVENTIONAL
Basement
FULL
Year Built
1927
Exterior Wall
FRAME
Total Living Area
1528
Full Baths
1
Half Baths
0
Fuel Type
GAS
Heating
CENTRAL
Heating System
FORCED AIR
Stories
2.0
Total Bedrooms
3
Total Family Rooms
0
Total Rooms
6
Fireplaces
0
Other Buildings & Yards
Description
Built
Width
Length
Area
FRAME OR CB DETACHED GARAGE
1927
12
20
240
Sales History
Sale Date
Type
Price
Book / Page
Other Info
1/16/2019
LAND & BUILDING
18830
2019 / 000910
WARRANTY/SURVIVORSHIP DEED
8/27/2018
LAND & BUILDING
0
2018 / 017542
SPECIAL WARRANTY DEED
2/16/2018
LAND & BUILDING
1442
2018 / 003128
SHERIFF'S DED
8/19/2002
LAND & BUILDING
0
911 / 2241
DEED
8/19/2002
LAND & BUILDING
47500
911 / 2244
DEED
2/23/2000
0
0688 / 1663
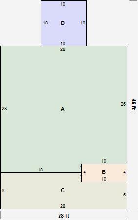
Parcel Sketches
Residential Card 1
A
MAIN
764 square feet
B
EFP ENCL FRAME PORCH
40 square feet
C
OFP OPEN FRAME PORCH
204 square feet
D
WDDCK WOOD DECKS
100 square feet
Parcel Images