Elected Officials
Courts
Departments
Initiatives
Open Government
About
Login / Register
Home
/
Property & Tax Records
/
Property Records
/
Property & Tax Search
/
Parcel Profile
/
Print View
Search for Another Parcel
Parcel Profile
Historical Card
Sketches
Photos
Tax Map
Taxes
Print View
Print This Page
Address: 101 E SMITH ST
Parcel: 06022029001300
Parcel Profile
Address
101 | E | SMITH | ST
Street Status
PAVED | SIDEWALK
School District
CORRY AREA SCHOOL
Acreage
0.3306
Classification
R
Land Use Code
TWO FAMILY
Legal Description
101 E SMITH ST 60X240
Square Feet
3466
Topo
LEVEL
Utility
ALL PUBLIC
Zoning
Please contact your municipal zoning officer
Deed Book
2014
Deed Page
012120
2026 Tax Values
Land Value / Taxable
13,700 / 13,700.00
Building Value / Taxable
136,400 / 136,400.00
Total Value / Taxable
150,100 / 150,100.00
Clean & Green
Inactive
Homestead Status
Inactive
Farmstead Status
Inactive
Lerta Amount
0
Lerta Expiration Year
0
Residential Data
Card 1
Style
OLD STYLE
Basement
FULL
Year Built
1924
Exterior Wall
BRICK
Total Living Area
3466
Full Baths
3
Half Baths
1
Fuel Type
GAS
Heating
CENTRAL A/C
Heating System
FORCED AIR
Stories
2.0
Total Bedrooms
4
Total Family Rooms
0
Total Rooms
13
Fireplaces
3
Other Buildings & Yards
Description
Built
Width
Length
Area
BRICK OR STONE DETACHED GAR.
1927
20
24
480
Sales History
Sale Date
Type
Price
Book / Page
Other Info
6/18/2014
LAND & BUILDING
155000
2014 / 012120
WARRANTY/SURVIVORSHIP DEED
8/22/1990
0
0134 / 0739
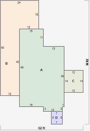
Parcel Sketches
Residential Card 1
A
MAIN
1265 square feet
B
1SMAS MASONRY
936 square feet
C
CARPT CARPORT
168 square feet
D
MA STOOP/TERR MAS STOOP
56 square feet
Parcel Images
Please note:
this tab is for informational purposes only and may not show all delinquencies, see the Taxes tab for more accurate delinquent taxes due.