Elected Officials
Courts
Departments
Initiatives
Open Government
About
Login / Register
Home
/
Property & Tax Records
/
Property Records
/
Property & Tax Search
/
Parcel Profile
/
Print View
Search for Another Parcel
Parcel Profile
Historical Card
Sketches
Photos
Tax Map
Taxes
Print View
Print This Page
Address: 8 E PARK PL
Parcel: 06022093000100
Parcel Profile
Address
8 | E | PARK | PL
Street Status
PAVED | SIDEWALK
School District
CORRY AREA SCHOOL
Acreage
0.2072
Classification
A
Land Use Code
APARTMENTS 4 - 19 UNITS
Legal Description
8 E PARK PLACE 90.25X100
Square Feet
9589
Topo
LEVEL
Utility
ALL PUBLIC
Zoning
Please contact your municipal zoning officer
Deed Book
0175
Deed Page
0554
2026 Tax Values
Land Value / Taxable
18,100 / 18,100.00
Building Value / Taxable
161,000 / 161,000.00
Total Value / Taxable
179,100 / 179,100.00
Clean & Green
Inactive
Homestead Status
Inactive
Farmstead Status
Inactive
Lerta Amount
0
Lerta Expiration Year
0
Commercial Data
Card 1
MIXED RESIDENTIAL/COMMERCIAL
Business Living Area - 9589
Year Built - 1900
Improvement Name - APARTMENTS
Value - 161020
Other Buildings & Yards
No OBY Data Found
Sales History
Sale Date
Type
Price
Book / Page
Other Info
9/4/1991
0
0175 / 0554
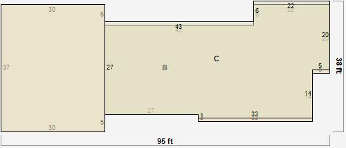
Parcel Sketches
Commercial Card 1
A
MAIN
848 square feet
B
MAIN
1770 square feet
C
MAIN
1855 square feet
D
MAIN
5116 square feet
Parcel Images
Please note:
this tab is for informational purposes only and may not show all delinquencies, see the Taxes tab for more accurate delinquent taxes due.