Elected Officials
Courts
Departments
Initiatives
Open Government
About
Login / Register
Home
/
Property & Tax Records
/
Property Records
/
Property & Tax Search
/
Parcel Profile
/
Print View
Search for Another Parcel
Parcel Profile
Historical Card
Sketches
Photos
Tax Map
Taxes
Print View
Print This Page
Address: 143 MAPLE AVE
Parcel: 06022094000400
Parcel Profile
Address
143 | MAPLE | AVE
Street Status
PAVED | SIDEWALK
School District
CORRY AREA SCHOOL
Acreage
0.2201
Classification
R
Land Use Code
SINGLE FAMILY
Legal Description
143 MAPLE AVE 94 X 105.60
Square Feet
2605
Topo
LEVEL
Utility
ALL PUBLIC
Zoning
Please contact your municipal zoning officer
Deed Book
2021
Deed Page
028929
2026 Tax Values
Land Value / Taxable
11,600 / 11,600.00
Building Value / Taxable
39,070 / 39,070.00
Total Value / Taxable
50,670 / 50,670.00
Clean & Green
Inactive
Homestead Status
Active
Farmstead Status
Inactive
Lerta Amount
0
Lerta Expiration Year
0
Residential Data
Card 1
Style
OLD STYLE
Basement
FULL
Year Built
1850
Exterior Wall
ALUMINUM/VINYL
Total Living Area
2605
Full Baths
1
Half Baths
0
Fuel Type
GAS
Heating
CENTRAL
Heating System
FORCED AIR
Stories
2.0
Total Bedrooms
3
Total Family Rooms
0
Total Rooms
6
Fireplaces
0
Other Buildings & Yards
No OBY Data Found
Sales History
Sale Date
Type
Price
Book / Page
Other Info
10/28/2021
LAND & BUILDING
59000
2021 / 028927
SPECIAL WARRANTY DEED
10/28/2021
LAND & BUILDING
0
2021 / 028929
SPECIAL WARRANTY DEED
1/3/2002
LAND & BUILDING
17500
0840 / 1576
6/20/2001
LAND & BUILDING
15000
784 / 2026
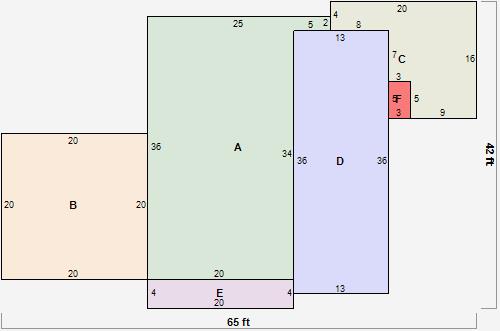
Parcel Sketches
Residential Card 1
A
MAIN
730 square feet
B
FR GR FRAME GARAGE
400 square feet
C
1S FR ONE STORY FRAME
209 square feet
D
1S FR ONE STORY FRAME 1S FR ONE STORY FRAME
468 square feet
E
EFP ENCL FRAME PORCH
80 square feet
F
OFP OPEN FRAME PORCH
15 square feet
Parcel Images
Please note:
this tab is for informational purposes only and may not show all delinquencies, see the Taxes tab for more accurate delinquent taxes due.