Elected Officials
Courts
Departments
Initiatives
Open Government
About
Login / Register
Home
/
Property & Tax Records
/
Property Records
/
Property & Tax Search
/
Parcel Profile
/
Print View
Search for Another Parcel
Parcel Profile
Historical Card
Sketches
Photos
Tax Map
Taxes
Print View
Print This Page
Address: 135 MAPLE AVE
Parcel: 06022094000600
Parcel Profile
Address
135 | MAPLE | AVE
Street Status
PAVED | SIDEWALK
School District
CORRY AREA SCHOOL
Acreage
0.1212
Classification
R
Land Use Code
SINGLE FAMILY
Legal Description
135 MAPLE AVE 50X105.6
Square Feet
1560
Topo
LEVEL
Utility
ALL PUBLIC
Zoning
Please contact your municipal zoning officer
Deed Book
0728
Deed Page
0172
2025 Tax Values
Land Value / Taxable
11,600 / 11,600.00
Building Value / Taxable
34,900 / 34,900.00
Total Value / Taxable
46,500 / 46,500.00
Clean & Green
Inactive
Homestead Status
Active
Farmstead Status
Inactive
Lerta Amount
0
Lerta Expiration Year
0
Residential Data
Card 1
Style
OLD STYLE
Basement
FULL
Year Built
1900
Exterior Wall
COMPOSITION
Total Living Area
1560
Full Baths
1
Half Baths
0
Fuel Type
GAS
Heating
CENTRAL
Heating System
FORCED AIR
Stories
2.0
Total Bedrooms
3
Total Family Rooms
0
Total Rooms
7
Fireplaces
0
Other Buildings & Yards
Description
Built
Width
Length
Area
FRAME OR CB DETACHED GARAGE
1900
12
18
216
Sales History
Sale Date
Type
Price
Book / Page
Other Info
9/22/2000
0
0728 / 0172
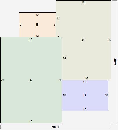
Parcel Sketches
Residential Card 1
A
MAIN
560 square feet
B
OFP OPEN FRAME PORCH
96 square feet
C
UNFIN BSMT BASEMENT UNFINISHED 1S FR ONE STORY FRAME
440 square feet
D
EFP ENCL FRAME PORCH
150 square feet
Parcel Images