Elected Officials
Courts
Departments
Initiatives
Open Government
About
Login / Register
Home
/
Property & Tax Records
/
Property Records
/
Property & Tax Search
/
Parcel Profile
/
Print View
Search for Another Parcel
Parcel Profile
Historical Card
Sketches
Photos
Tax Map
Taxes
Print View
Print This Page
Address: 126 E WAYNE ST
Parcel: 06022096000700
Parcel Profile
Address
126 | E | WAYNE | ST
Street Status
PAVED | SIDEWALK
School District
CORRY AREA SCHOOL
Acreage
0.0574
Classification
R
Land Use Code
SINGLE FAMILY
Legal Description
126 E WAYNE ST 50 X 50
Square Feet
1244
Topo
LEVEL
Utility
ALL PUBLIC
Zoning
Please contact your municipal zoning officer
Deed Book
2023
Deed Page
016159
2025 Tax Values
Land Value / Taxable
9,600 / 9,600.00
Building Value / Taxable
37,600 / 37,600.00
Total Value / Taxable
47,200 / 47,200.00
Clean & Green
Inactive
Homestead Status
Active
Farmstead Status
Inactive
Lerta Amount
0
Lerta Expiration Year
0
Residential Data
Card 1
Style
CONVENTIONAL
Basement
FULL
Year Built
1910
Exterior Wall
ALUMINUM/VINYL
Total Living Area
1244
Full Baths
1
Half Baths
0
Fuel Type
GAS
Heating
CENTRAL
Heating System
FORCED AIR
Stories
1.5
Total Bedrooms
1
Total Family Rooms
0
Total Rooms
8
Fireplaces
0
Other Buildings & Yards
No OBY Data Found
Sales History
Sale Date
Type
Price
Book / Page
Other Info
9/25/2023
LAND & BUILDING
77000
2023 / 016159
SPECIAL WARRANTY DEED
10/15/1992
0
0234 / 2340
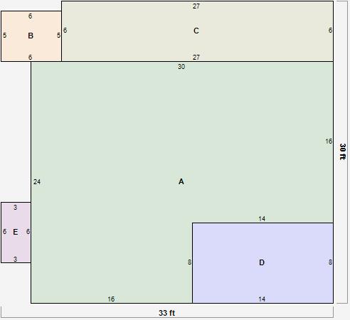
Parcel Sketches
Residential Card 1
A
MAIN
608 square feet
B
WDDCK WOOD DECKS
30 square feet
C
1S FR ONE STORY FRAME
162 square feet
D
EFP ENCL FRAME PORCH
112 square feet
E
UNFIN BSMT BASEMENT UNFINISHED 1S FR ONE STORY FRAME
18 square feet
Parcel Images