Elected Officials
Courts
Departments
Initiatives
Open Government
About
Login / Register
Home
/
Property & Tax Records
/
Property Records
/
Property & Tax Search
/
Parcel Profile
/
Print View
Search for Another Parcel
Parcel Profile
Historical Card
Sketches
Photos
Tax Map
Taxes
Print View
Print This Page
Address: 129 WRIGHT ST
Parcel: 06022097001300
Parcel Profile
Address
129 | WRIGHT | ST
Street Status
PAVED
School District
CORRY AREA SCHOOL
Acreage
0.1148
Classification
E
Land Use Code
EXEMPT SERVICE CONNECTED (VETERANS)
Legal Description
129 WRIGHT ST 50X100
Square Feet
1728
Topo
LEVEL
Utility
ALL PUBLIC
Zoning
Please contact your municipal zoning officer
Deed Book
1118
Deed Page
0077
2026 Tax Values
Land Value / Taxable
11,500 / 0.00
Building Value / Taxable
53,200 / 0.00
Total Value / Taxable
64,700 / 0.00
Clean & Green
Inactive
Homestead Status
Inactive
Farmstead Status
Inactive
Lerta Amount
0
Lerta Expiration Year
0
Residential Data
Card 1
Style
OLD STYLE
Basement
FULL
Year Built
1890
Exterior Wall
ALUMINUM/VINYL
Total Living Area
1728
Full Baths
1
Half Baths
0
Fuel Type
GAS
Heating
CENTRAL
Heating System
HOT WATER
Stories
2.0
Total Bedrooms
4
Total Family Rooms
1
Total Rooms
7
Fireplaces
0
Other Buildings & Yards
Description
Built
Width
Length
Area
FRAME UTILITY SHED
1980
10
12
120
Sales History
Sale Date
Type
Price
Book / Page
Other Info
3/26/2004
LAND & BUILDING
48500
1118 / 0077
WARRANTY/SURVIVORSHIP DEED
8/18/1998
0
0581 / 1344
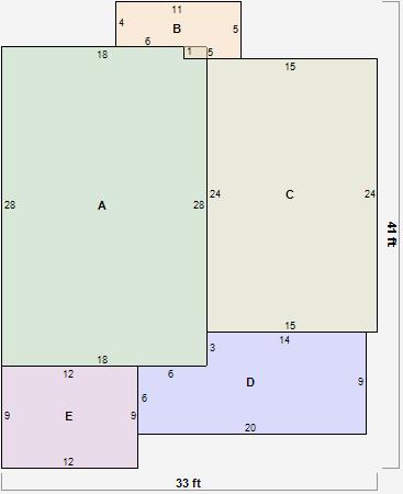
Parcel Sketches
Residential Card 1
A
MAIN
504 square feet
B
EFP ENCL FRAME PORCH
49 square feet
C
1S FR ONE STORY FRAME 1S FR ONE STORY FRAME
360 square feet
D
EFP ENCL FRAME PORCH
162 square feet
E
OFP OPEN FRAME PORCH
108 square feet
Parcel Images
Please note:
this tab is for informational purposes only and may not show all delinquencies, see the Taxes tab for more accurate delinquent taxes due.